The Scape House is a new contemporary home that was completed in 2014 in Shiga, Japan. It was designed by a team of architects from FORM | Kouichi Kimura Architects and was built on a 2,626 square foot lot on an elevated location that ensures fantastic panoramas of a nearby lake. The residence itself offers 1,474 square feet of living space and stands ready to provide comfortable, modern living arrangements.
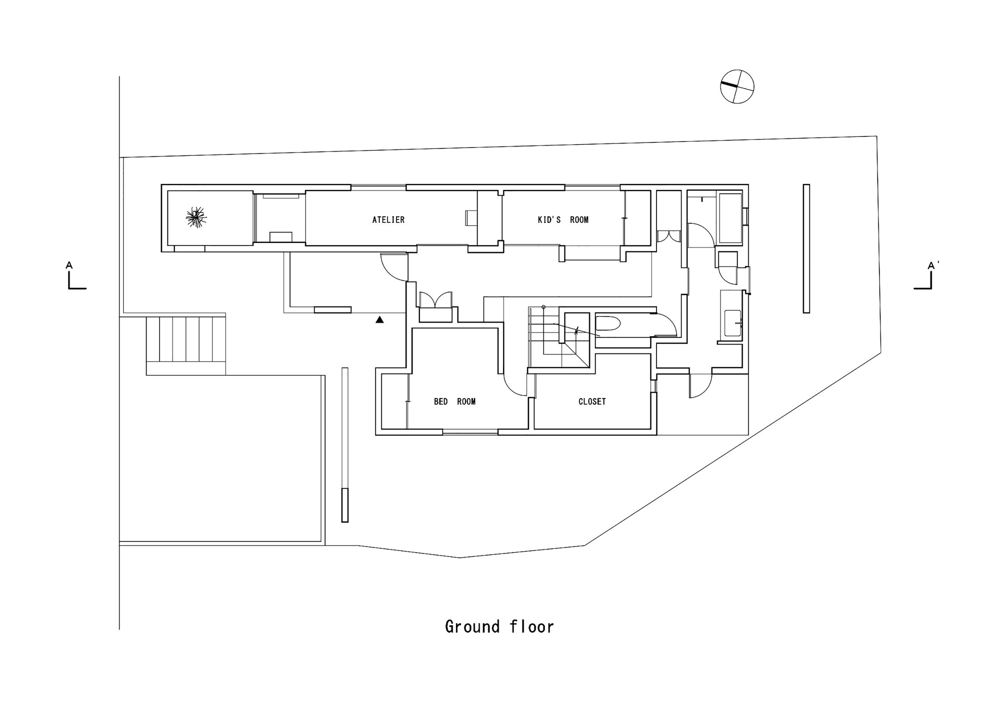
The abode features two floors, and its ground floor includes accommodations for the child, a bedroom, a closet and an atelier. The first floor houses an open space that incorporates the kitchen, living room and dining room as well as a closet and a balcony. The overall atmosphere is one of cleanliness and fine taste. The predominant color palette includes gray, white, shades of dark and light brown as well as deep blue in the kid’s room.
Even though its large windows offer amazing views of the lake and of the surrounding environment, the Scape House is a very private, cozy dwelling.
From the architect:
The house is located in the tiered-developed residential area on a hill. From the site, the beautiful scenery of the lake can be viewed. The customer requested that the view be fully utilized and that the space be opened while not being bothered by eyes of neighborhood.
In this project, versatile spaces that incorporate light and scenery were intended by the windows in order to bring out the best in this house.
Scenery viewed through a window is greatly affected by the size or position of the window.
It is therefore essential to consider what should be viewed or not in the scenery framed by the window, instead of being stereotyped to take in the large area of the scenery by providing the largely-opening window.
The windows as framings produce comfortable spaces where you can enjoy light and scenery without being annoyed by eyes of neighborhood. The spaces incorporate a table, bench, book shelf, niche, and other furniture items so that you can utilize there to view outside, read books, eat meals, etc., which brings out characteristics of each space and provides its versatility.
The space is composed of mortar with a feel of texture, highlighting its presence. At the same time, it provides openness created by the clear and continuous sightline.
In addition, the space also serves as an indispensable element that reflects visual changes of light and scenery developed while moving around the room.
The dynamic configuration involving the box-shape volume with rhythmical layout of the windows produces beautiful life scenes where light and scenery are taken in while the eyes of neighborhood are blocked.
Location: Shiga, Japan
Area: 137.0 sqm
Year: 2014
Photographs: Yoshihiro Asada



















More Similar Articles Like This
Vibrant Wood Tones: Explore a Spectrum of Spray Paint Colors!
Extraordinary Constance Halaveli Maldives Resort
Exquisite Crossacres Mansion In Surrey, England
Plain Geometric Residence Designed by Lidija Dragisic
Seamlessly Apartment by the Beach by ZZ Architects
These Top Tips Will Help You to Turn Your Garden into the Ultimate Glamping Site!
5 Ways to Turn Your Yard Into a Fancy Space
Stunning Sustainable Home in Costa Rica by SPG Architects