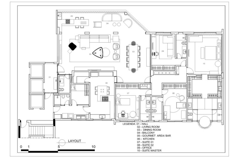
Apartment LA in Belo Horizonte, Brazil, was designed by the architect David Guerra, especially for a family with two kids. This home includes both the aspect of a country house and the practical style of the city. The place suffered some transformations before receiving the family. The walls that were separating the living room from the balcony were demolished and after that, the balcony became a gourmet bar/kitchen. The addition of a small fireplace made the living room warmer and more inviting, the new ambience combining colors, rustic and natural materials with other modern and technological ones, such as wool, natural linen, nude tones, leather in various colors, wood, gray Mister Cryl, Silestone rock, stainless steel, yellow metal, mirror, glass, bronze and many others.
The furniture was chosen in accordance with the ambient, contributing to a comfortable, warm, elegant and relaxed atmosphere.
The entire floor of the apartment passed through a bleaching process, giving it a more light and modern touch to the space.
The master bedroom is the most elegant room in the apartment due to the Limestone Persiano, cabinet with Italian glass and Rimadesio door. The kid’s room features a colorful and playful design that gives the space a hip and timeless style.





















More Similar Articles Like This
Outstanding Bodrum Houses in Yalikavak, Turkey
Different Types Of Foundations For Summer Houses and Garden Buildings
Benjamin Moore Exterior Paint: Vibrant Shades for a Striking Home
6 Garden and Lawn Tips to Get Ready for Spring
10 Different Types of Blue Paint Colors
Green Gables Home In Fairfield, Connecticut, United States
Unique Click Clack Hotel In Bogota, Colombia
The JKC1 House in Bukit Timah, Singapore