Built for a family of four, this lovely residence sits on a rather small plot, but it efficiently takes advantage of every single available inch, offering 3,767 square feet of living spaces to its dwellers. It was completed by N. Koukourakis & Associates studio, and it is located in Kifisia, a high-end suburb in Athens, Greece.
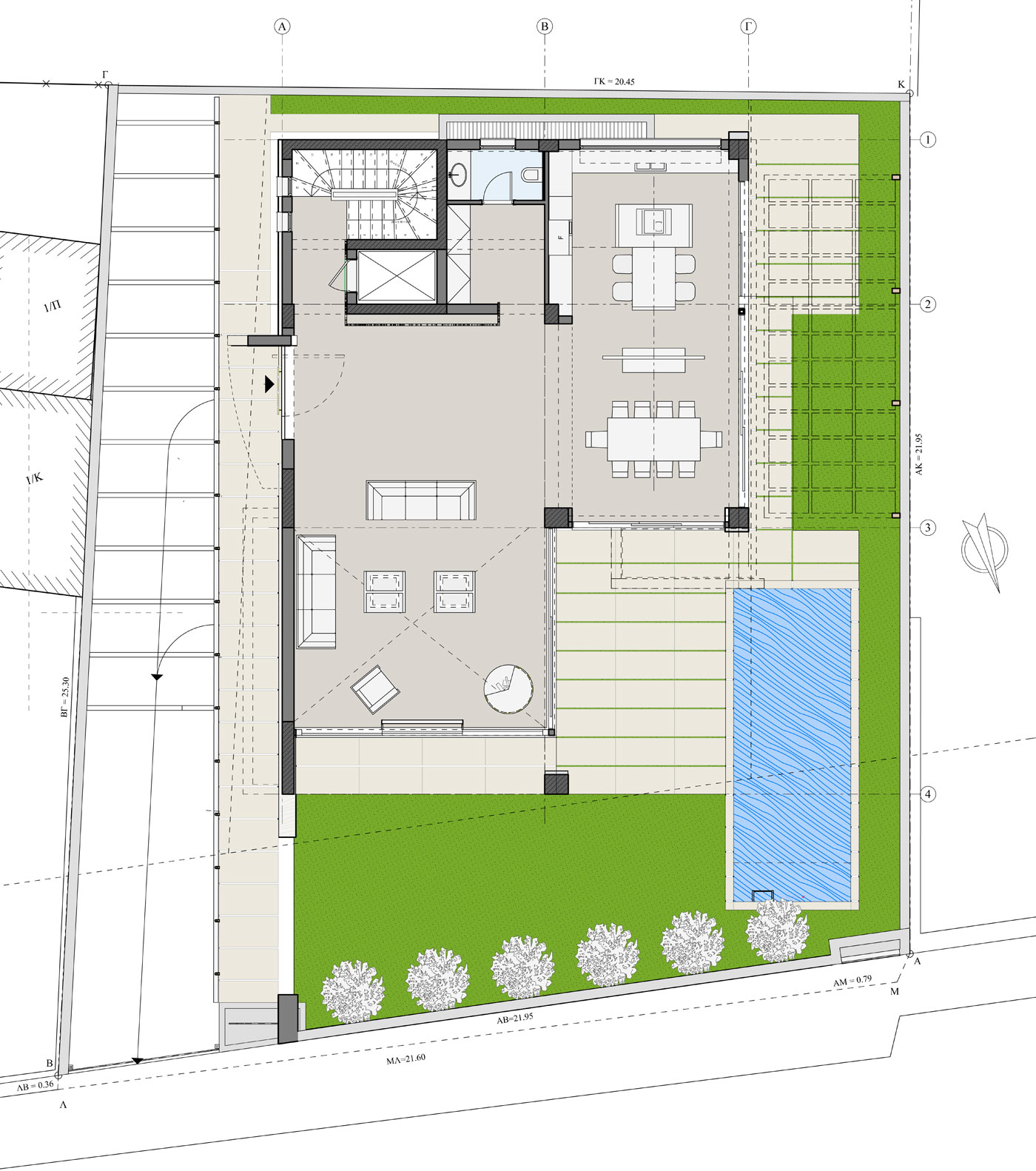
The ground floor houses the public/socialization areas: dining room, sitting room, rest room, kitchen, and foyer. These are all visually connected to the beautiful outdoor spaces, being separated from them by large glass walls. The borders between inside and outside is successfully blurred for a seamless communication with the surroundings.
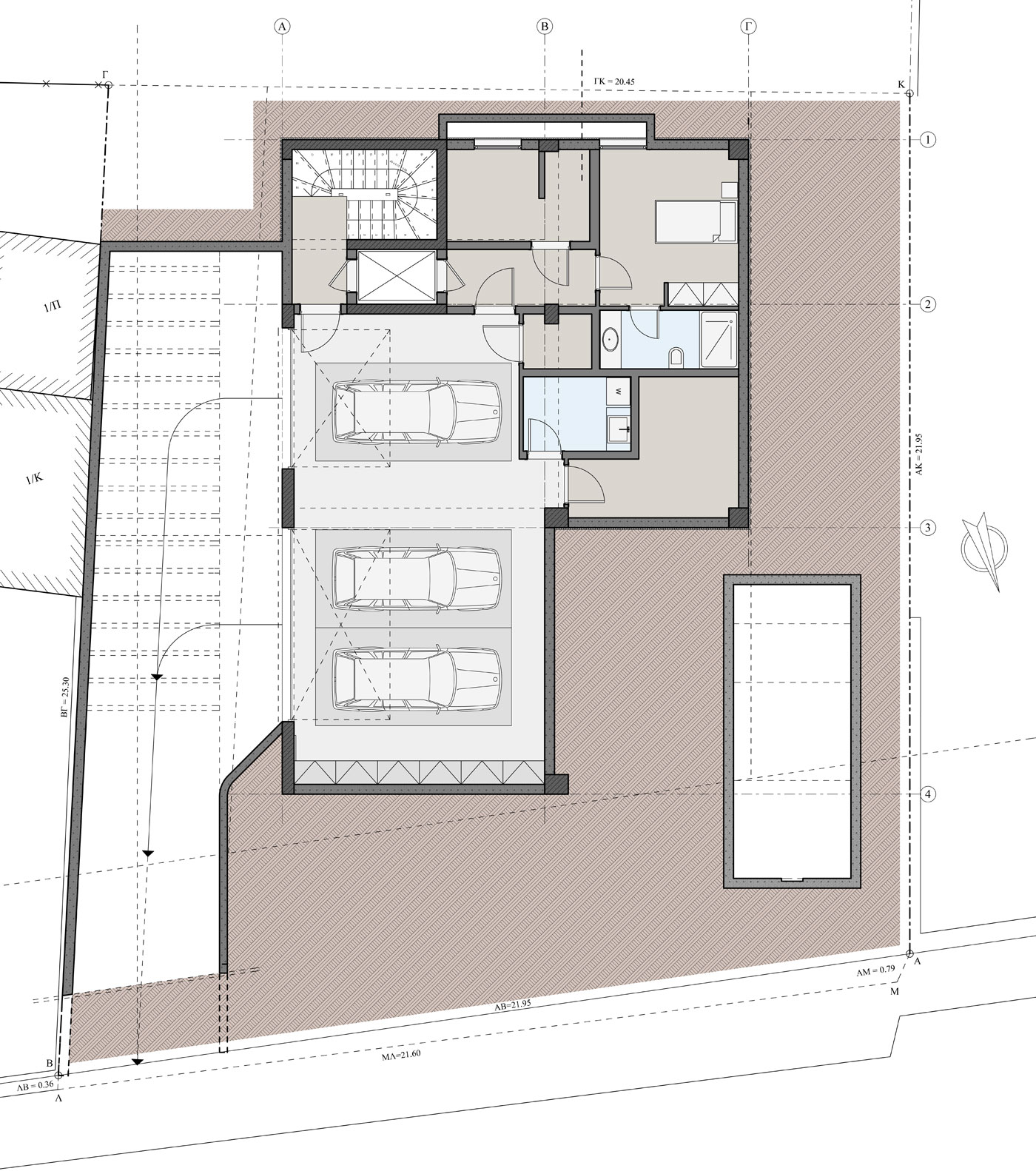
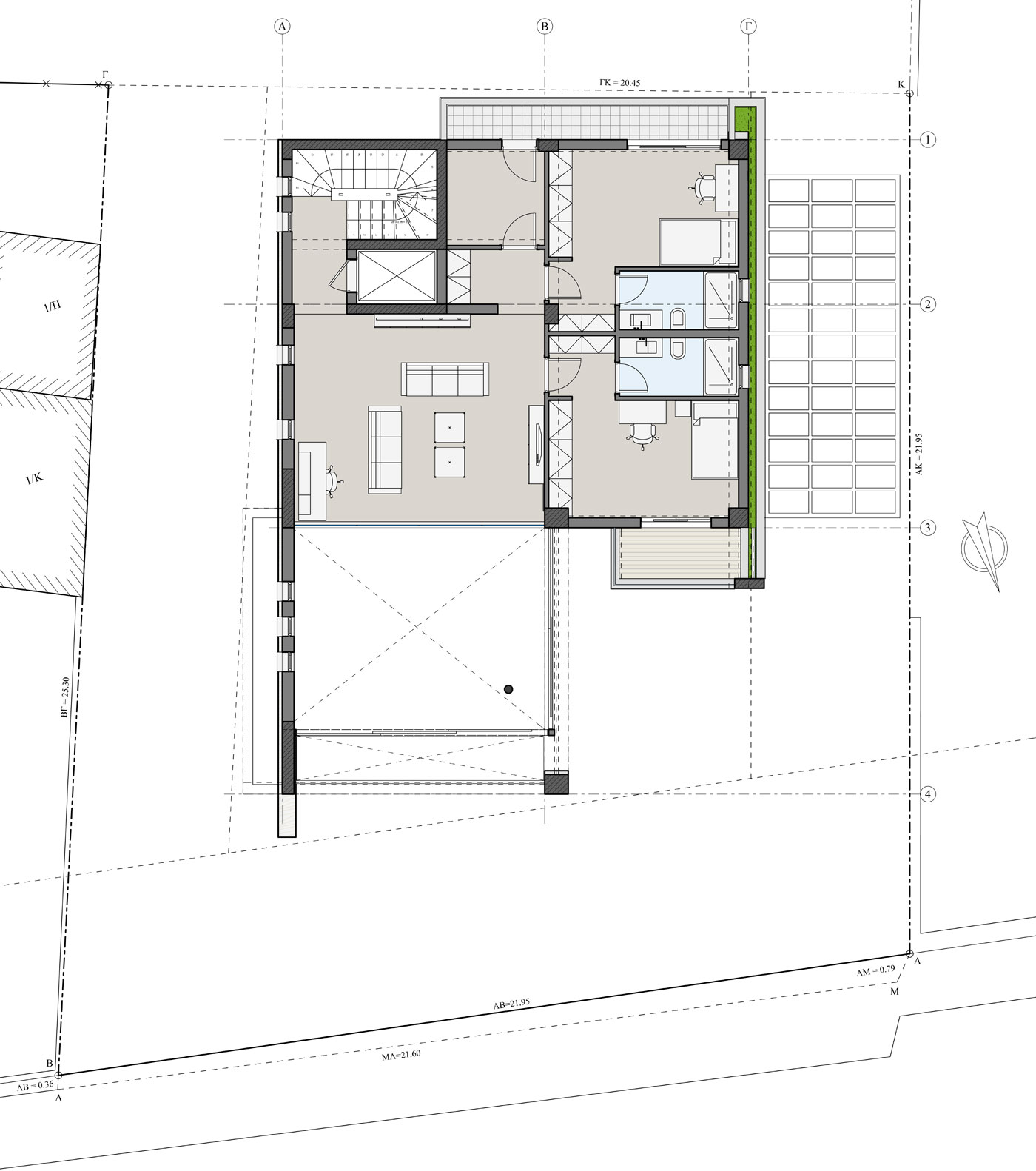
On the first floor one can find the living room, the children’s bedrooms and the office, while on the second floor there is an impressive master bedroom with a generous veranda. A guest room and additional “functional rooms” can be found in he basement.
Photos by: Vaggelis Paterakis





























More Similar Articles Like This
Astonishing El Tovar by the Sea
Behr’s Brilliant Blues: 70 Shades of Stunning Paint Colors
Different Types Of Foundations For Summer Houses and Garden Buildings
Spectacular Luxury House in Sarasota, Florida by DSDG Inc. Architects
Stunning Sustainable Home in Costa Rica by SPG Architects
Shadowed Depths: Vintage-inspired Paint Colors for Dark Basements
Saguaro Palm Springs by Joie de Vivre
Plain Geometric Residence Designed by Lidija Dragisic