The Nahahum residence was constructed in 2009 by Balance Associates at a scenic location in Cashmere, Washington, USA. It features 1,650 square feet of living space and rises on two stories in order to provide the most exquisite views of the environment. The entryway is a double-height space that flaunts full height glazing on its north and south walls.
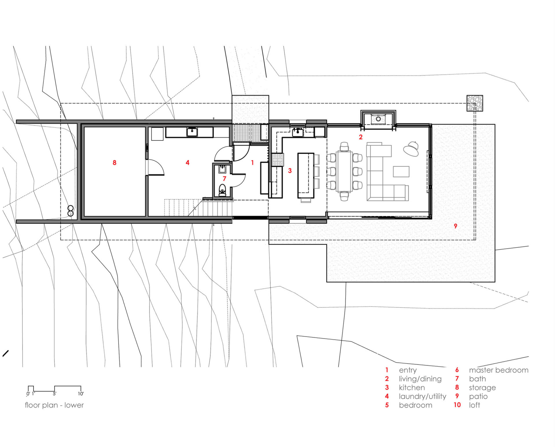
The main floor houses a living room, a fully equipped kitchen, a powder room and a utility area that was inserted within the hillside part of the abode. Upstairs is where the master suite and guest accommodations are located, while a loft style flex space opens up to the living room underneath. Built at a remote location in one of the most beautiful spots in Washington, the Nahahum residence is able to support a luxurious and refined lifestyle.
From the architect:
Located north of Cashmere, Washington, in the Nahahum Canyon, this 1650 square foot two story dwelling is set into the hillside with concrete retaining walls that guide the form of the cabin.
Its east west longitudinal axis and generous overhangs are designed to take advantage of solar orientation while maintaining panoramic views.
The main entry is a two story room with full height glazing on the north and south walls that frame the most dramatic down-canyon view.
An eastern oriented living space and kitchen occupy most of the main floor along with a powder room and utility area located within the hillside portion of the home.
The upper floor contains the master suite and guest bedroom/bathroom with a loft style flex space that opens up to the living room below.
Architects: Balance Associates
Location: Cashmere, WA 98815, United States
Architect in Charge: Tom Lenchek AIA
Project Architect: Kyle Zerbey AIA
Structural Engineers: Harriott Valentine Engineers
General Contractor: Fred Dowdy
Area: 1650.0 ft2
Project Year: 2009
Photographs: Steve Keating Photography














More Similar Articles Like This
Vibrant Concrete Floor Paint Colors to Elevate Your Space
The Sophisticated Casa Villa Flamingo in Spain
Tips for Choosing the Right Blue Paint Color for Your Dining Room
70 Shades of Green: Benjamin Moore’s Vibrant Paint Colors
Extraordinary Constance Halaveli Maldives Resort
Different Types Of Foundations For Summer Houses and Garden Buildings
Exquisite Crossacres Mansion In Surrey, England
These Top Tips Will Help You to Turn Your Garden into the Ultimate Glamping Site!