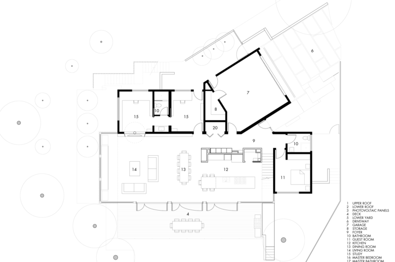
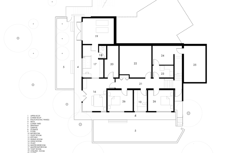
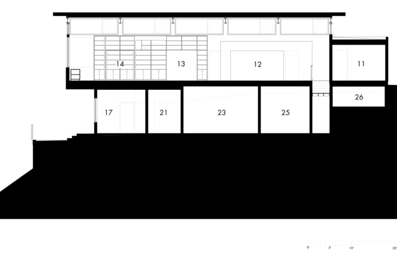
Located in Brentwood, California, the Broom Way Residence is a beautiful contemporary home by Nonzero Architects. It was finished in 2011, and its 4,200 square feet of interior spaces have been beautifully furnished and decorated by Laurie March.
The original building on the lot was erected sometime in the 1950s, but the owners had it completely demolished to make room for a new and truly spectacular home. Built with a strong focus on sustainability, the house is set on a sloping site, above a wooded canyon, which ensures amazing views from all levels.
Privacy is maintained by keeping the house rather closed on the street side, but this feature changes dramatically on the opposite side, where huge glass walls keep the common areas completely open towards nature. Natural light floods the spaces, and the interior-exterior relationship is excellent.
In terms of eco-friendliness, the residence boasts photovoltaic glass panels, deep roof overhangs, and natural ventilation systems, all helping minimize the construction’s impact on the environment.
Photos by Juergen Nogai








































More Similar Articles Like This
The Sophisticated Casa Villa Flamingo in Spain
Behr’s Brilliant Blues: 70 Shades of Stunning Paint Colors
Opulent Mandarin Oriental Hotel in Paris
5 Ways to Turn Your Yard Into a Fancy Space
Exploring the New World of Luxury Hoteling
Amazing Four Seasons Resort Bora Bora
These Top Tips Will Help You to Turn Your Garden into the Ultimate Glamping Site!
Wonderful Yachting Club Villas at Elounda Beach by Davide Macullo Architects