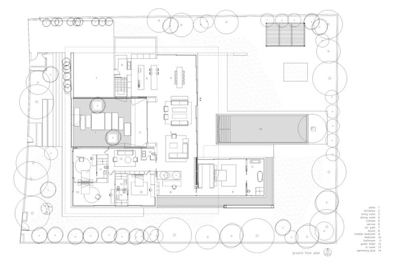
This luxurious family home can be found in Tel Aviv, Israel, and it was designed by a company called Pitsou Kedem Architects. Even though it features just one story, this splendid abode includes everything that one could possibly need in order to enjoy a lavish and carefree lifestyle.
The internal courtyard and the main living spaces are both connected by 2 very thin roofs that actually end up merging and stretching high above the front walls of the abode. The thin border between the indoors and outdoors is blurred at the entrance lobby, which leads alongside a transparent pool flanked by trees and basalt rocks.
The interiors boast a plethora of glass elements that ensure a seamless flow of natural light while helping create an atmosphere of spaciousness and tranquility. High-end amenities, large beds, flat screen TVs and remarkable décor elements all contribute to the home’s overall sense of warmth and comfort.
Have a closer look at the Float House by Pitsou Kedem Architects by browsing through the following image gallery.
























More Similar Articles Like This
Extraordinary Constance Halaveli Maldives Resort
Opulent Mandarin Oriental Hotel in Paris
Boracay Resort & Spa in the Fascinating Philippines
10 Different Types of Blue Paint Colors
Vibrant Wood Tones: Explore a Spectrum of Spray Paint Colors!
Saguaro Palm Springs by Joie de Vivre
Behr’s Brilliant Blues: 70 Shades of Stunning Paint Colors
70 Shades of Green: Benjamin Moore’s Vibrant Paint Colors