Rd House is an architectural project completed by VASHO Architects in 2013. It is located in Jarabacoa, Dominican Republic and is a very spacious house, which is perfectly integrated into the natural space.
This stunning home is characterized by open spaces, comfortable bedrooms with their own bathrooms, study and/or library and living room-dining room-kitchen all in one space.
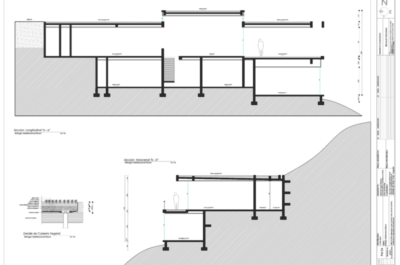
The natural level curve of the face of the hill had a great impact on the structural reinforcement of the project but also on the programmatic distribution of spaces.
Rock extracted from the excavation of the property was highly used in building the structure of the construction, its concrete walls being molded in pine formers which along with the high quality native wood, created a rustic environment.
Burying the house in the hill reached the aesthetic aspect but also the sustainable aspect, because the green roof permits far more insulation due to the fact that it receives direct heat from the sun.
The house also includes a Domotic intelligent system that practically integrates a structured web that allows you to control the lighting scene, the entertainment components and security elements, from anywhere within the home or out of the home, for your own safety, protection and energy saving.























More Similar Articles Like This
Heavenly Lily Beach Resort & Spa In Huvahendhoo, Maldives
10 Different Types of Blue Paint Colors
Astonishing El Tovar by the Sea
Gayton Road Residence by Paxton Locher Studio
Different Types Of Foundations For Summer Houses and Garden Buildings
Best paint colors for the living room
Stunning Banyan Tree Ungasan Bali in Indonesia
The Superb Maradiva Villas Resort & Spa in Mauritius