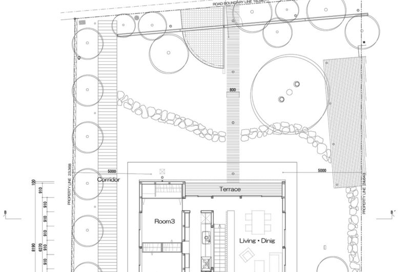
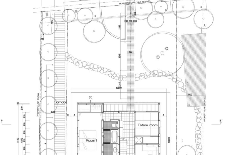
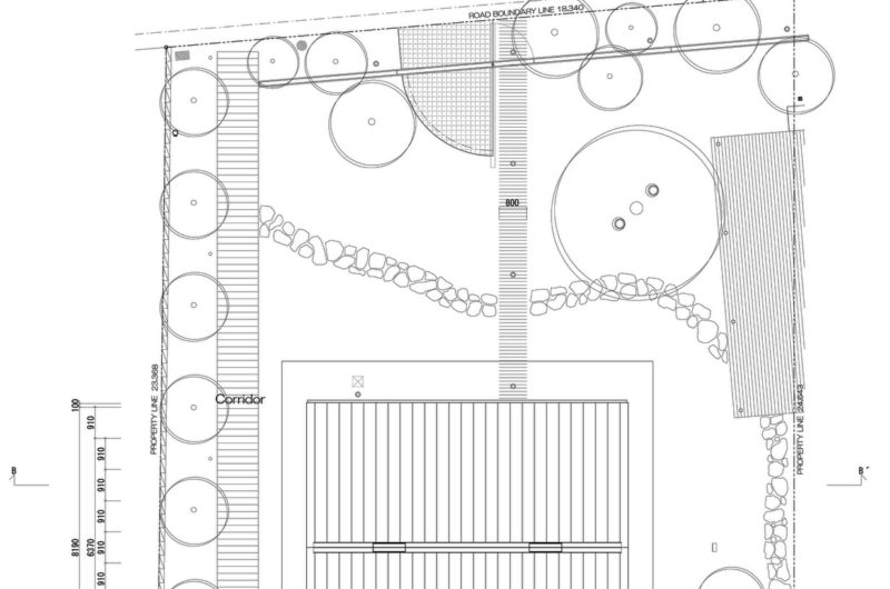
Very open, the IO House is a contemporary home in Anjo, Aichi, Japan. The young family who lives here wanted a dwelling where members could enjoy a seamless communication, without strictly private areas. The concept was successfully implemented by Osamu Morishita.
Very Open IO House by Osamu Morishita
Darcie George
I'm Darcie George, a writer who explores home paint. My stories are about making homes look great with colours. Let's learn how to choose paints and create cozy, beautiful spaces together. Join me in discovering the magic of home painting!

















More Similar Articles Like This
Saguaro Palm Springs by Joie de Vivre
6 Garden and Lawn Tips to Get Ready for Spring
Shadowed Depths: Vintage-inspired Paint Colors for Dark Basements
Stunning Banyan Tree Ungasan Bali in Indonesia
The JKC1 House in Bukit Timah, Singapore
Seamlessly Apartment by the Beach by ZZ Architects
Outstanding Bodrum Houses in Yalikavak, Turkey
Lawn Care Tips, The Basics For Each SeasonÂ