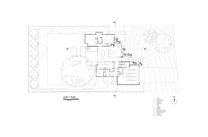
Built in 2013 and featuring 2,968 square feet of living space, the Paramount Residence can be found in Austin, Texas. Penned down with great attention to detail by A Parallel Architecture, this spacious and luxurious home was built on a prime location on the rim of a hilltop, and so it is able to provide fantastic views of the city skyline and nearby hillsides.
The home features 4 levels that ensure a proper separation of the public areas such as the main living room, dining room and garage found on the first floor from the private sleeping arrangements found on the second floor. The third level of the house is reserved for various mechanical installations and storage facilities, while a luxurious master suite can be found on the fourth floor along with a roof deck and a lounging area.
The interior spaces of the abode are bathed in natural light and boast a splendid array of high-end amenities and state-of-the-art appliances. The kitchen is fully equipped with everything one could possibly need in order to cook a delicious meal or store a plethora of ingredients. Finally, the dining table is made out of wood and gives off a rustic and welcoming allure.
Photos by Topher Ayrhart














More Similar Articles Like This
Benjamin Moore Exterior Paint: Vibrant Shades for a Striking Home
Gayton Road Residence by Paxton Locher Studio
Beach House CN – A Superb Contemporary Home in Peru
Astonishing El Tovar by the Sea
Heavenly Lily Beach Resort & Spa In Huvahendhoo, Maldives
Dreamy Oceanfront Chateau In West Vancouver, Canada
Behr’s Brilliant Blues: 70 Shades of Stunning Paint Colors
How Seattle Lawn Care Service Deals With Overgrown Lawns