The Concrete House is a contemporary project that was completed in 2015 in Melbourne, Victoria, Australia by Matt Gibson Architecture. When they designed this simple yet impressive house, the architects made sure to create a good connection between the indoor and outdoor spaces by installing large windows and sliding glass doors.
Inside, the owners enjoy high quality furnishings, wood-burning fireplaces and a generous selection of high-end amenities that support a luxurious lifestyle. The ground floor includes a master bedroom and a kitchen, both of which benefit from access to an eastern garden. The main living areas are practical and airy. White plaster complemented by stone, steel, timber and concrete are all some of the most noteworthy materials used for the indoor finishes, which happen to match nicely with the inhabitant’s choice of decorations and furnishings.
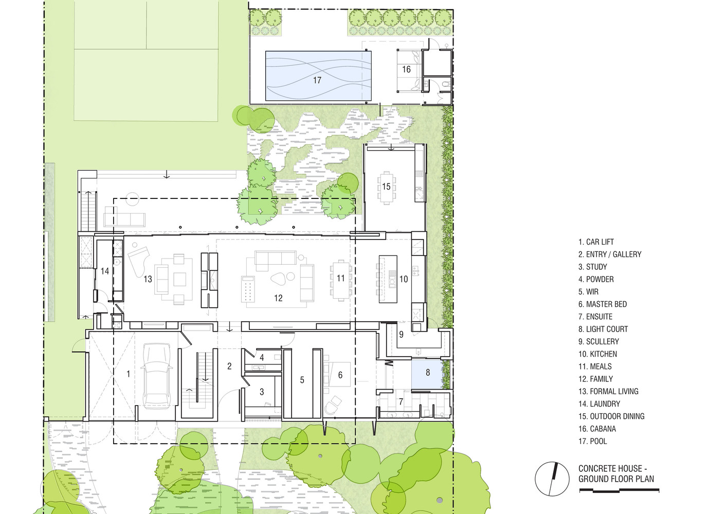
From the architect:
This site is north orientated and virtually square in dimension with a tennis court doglegged at the rear. It resides amongst a neighbourhood of sizeable blocks within an eclectic mix of mostly detached houses. The positioning of the building on the site was dictated by a 10m frontage set back. In order to gain maximum northern exposure and to maximise the rear POS an east-west band is positioned as far forward as possible offering the most responsive footprint.
Designed to forge a direct relationship between inside and outside the house contains 2 longitudinal zones of space located to the north and south of an east-west spine -Living to the north and Sleeping to the south. These spaces are organised about a central entry corridor that bisects the front elevation almost symmetrically.
On the ground level whilst only a very small element of the building is located on the boundary, a decision was made to run an essentially opaque screen from boundary to boundary (aiding privacy) with a clearly designated steel ‘shrouded’ entry. This wall (just below street level) acts as a recessive platform over which the cantilevered first floor perches and takes prominence.
The tapered concrete form provides a lens to maximise views to both front (over the newly landscaped Rick Eckersley garden) and rear (toward the city) whilst east and west elevations are windowless and restrict sightlines to neighbours. At ground level the Kitchen and Master Bed on the east have views and access onto secluded garden breezeways. The rear elevation follows a similar story to the front albeit with an open ground plane and accentuated eave protection to both levels of the northern living spaces.
Internally, the house is designed to reveal a sequence of spaces combining compactness and expansiveness. From the confined aperture of the front door one immediately encounters a double height roof lit entry gallery with little indication of what’s beyond. A descent through a further compressed opening reveals an expansive Living area and a wall of concealable glazing that frames unadulterated access to the rear garden and pool.
The main living spaces are left formally simple -lofty and airy. Vertical and horizontal material connections are woven through the interiors and are composed (as is the exterior) with a purity of volume and form. White plaster is used for practical purposes interspersed amongst timber, stone, steel and concrete allowing a natural backdrop for the clients’ lifestyle, furniture and artwork. The more intimate rooms continue this haptic theme (leather in the Master Bed for example) meeting the clients need for honest, practical and comfort driven interiors.
With nods to the desired mid century modernist brief thecompositional palette, along with use of the clients specially sourced stone on the exterior, is designed specific to client needs. Whilst there is significant scale in some spaces, the house is highly organised and space efficient, with clear zoning that supports both family life and individual privacy. Of particular satisfaction for us is that this house is designed specifically as a beautiful backdrop to this family’s life – blending art, landscape and natural comfort.
Architects: Matt Gibson Architecture
Location: Melbourne VIC, Australia
Project Year: 2015
Photographs: Derek Swalwell
Project Team: Matt Gibson, Brett Stonehouse, Weian Lim, Claire Monahan, Angela Hopkins
Collaborator: Eckersley Garden Architecture














More Similar Articles Like This
Loving Luxury at Mardan Palace Resort, Turkey
Pure Perfection: Discover the Top White Paint Colors for a Flawless Décor
Boracay Resort & Spa in the Fascinating Philippines
Amazing Four Seasons Resort Bora Bora
Secluded Naladhu Island in Maldives
Opulent Mandarin Oriental Hotel in Paris
Tips for Choosing the Right Blue Paint Color for Your Dining Room
Marvelous Anantara Dhigu Resort