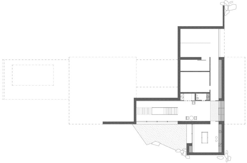
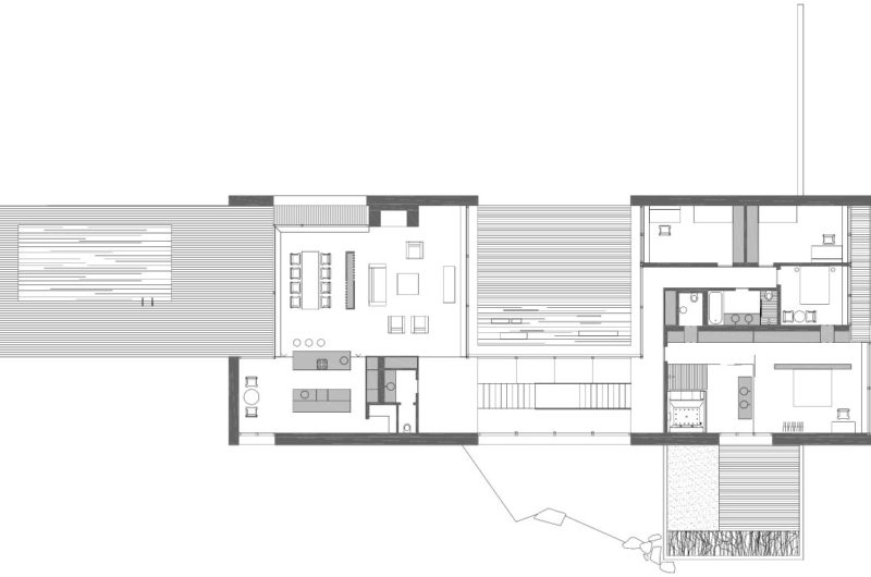
Villa Řitka is a two-storey house with a flat room completed by studio pha in 2011. It is located in Řitka, Czech Republic and to its construction was used exposed stone in order to accent the interior and the exterior walls.
The U-shaped home features a small indoor pool which provides cooling sustained by the system of louvered blinds against the sun.
If we take a look at the structure, from above on the access road, the place is like an organic compact whole of luscious appearance, the roof becoming itself a fifth façade.
Photos by Filip Šlapal






























More Similar Articles Like This
The Sophisticated Casa Villa Flamingo in Spain
A Superb Italianate Mansion in California, USA
Astonishing El Tovar by the Sea
Extraordinary Constance Halaveli Maldives Resort
The JKC1 House in Bukit Timah, Singapore
Behr’s Brilliant Blues: 70 Shades of Stunning Paint Colors
These Top Tips Will Help You to Turn Your Garden into the Ultimate Glamping Site!
Secluded Naladhu Island in Maldives