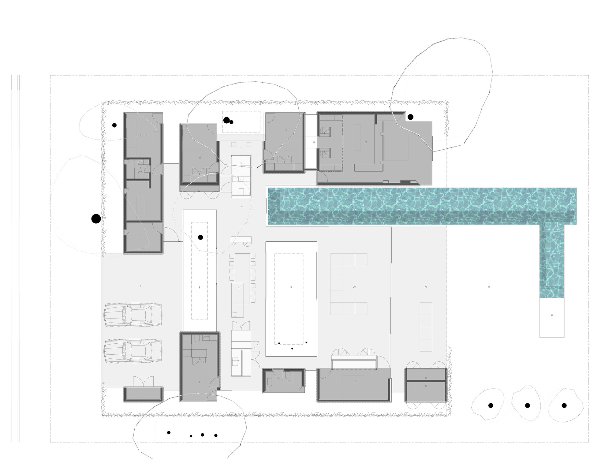
Minimalistic and luxurious, the INOUT House is located in San Jose, Costa Rica, and it was sketched out by Joan Puigcorbé. It features a superb design that includes a series of luxurious bedrooms arranged along the peripheries of the lot, close by to the neighboring properties. This way, the intermediate spaces between the volumes can be used socially, as they comprise a living room, a swimming pool, a porch, a barbecue area and a kitchen/dining space.
The main material used for the inside and outside finishes is Melina wood, which adds a touch of warmth and naturalness. The kitchen is equipped with state-of-the-art appliances and appears to dominate the social zone. It flaunts black granite elements that give off a feeling of high quality and luxury.
From the architect:
This house establishes an uninterrupted ̈inside-outside ̈ relationship; a sequence of layers between the open and the intermediary. Frontal boundaries are blurred by sheets of glass and vegetation, framed by two horizontal planes, floor and ceiling, where the full and the void are related via a series of matter, water, vegetation and sky. Lateral boundaries establish the ̈full-void ̈ relationship via a series of solid materials that close transversal views.
All bedrooms are arranged along the peripheries bordering the neighbors, leaving an intermediate space between volumes for social uses: kitchen-dining, living room, swimming pool, porch and barbecue.
Existing trees remain, uncompromisingly piercing the spaces they occupy.
A perimeter curtain of rope and vegetation delineates the limits of the building element, creating a gap of shadow / light that qualifies a space between.
A single material, Melina wood, dresses the inside and the outside. The apparatus varies: the outside is expressed as a relief while the inside is softened .
The kitchen table and the kitchen itself shapes a sculptural floor that presides over the social zone. The black gloss of the Absolute Black granite dematerializes, through its reflections, the gesture of formal forcefulness.
This house responds to the existing features of the landscape and reveals new dimensions of the topography of place. In its formalization and materiality, the experience of light, shadow, earth, water and air is intensified. The general form is readily readable and fluid in its articulation of space.
Architects: Joan Puigcorbé
Location: San Jose, Costa Rica
Area: 651.0 sqm
Project Year: 2015
Photographs: Jordi Miralles
Promotor: Costa Rica Natural Design
Collaborator: Carolina Pizarro
Interior Design: MKBstudio
























More Similar Articles Like This
Superb Luxury Penthouse in Portomaso, Malta
Extraordinary Constance Halaveli Maldives Resort
Beach House CN – A Superb Contemporary Home in Peru
Saguaro Palm Springs by Joie de Vivre
Outstanding Bodrum Houses in Yalikavak, Turkey
Dreamy Oceanfront Chateau In West Vancouver, Canada
How Seattle Lawn Care Service Deals With Overgrown Lawns
Santa Barbara Style Home in Paradise Valley, Phoenix