Built using high quality materials such as wood, travertine, marble, basalt, cement and iron, the 2628 Sister House was finished in 2013 by Pranala Associates, and it boasts 6,426 square feet of living space. It is located in Bandung City, West Java, Indonesia, and it is actually composed of two houses that occupy the same building.
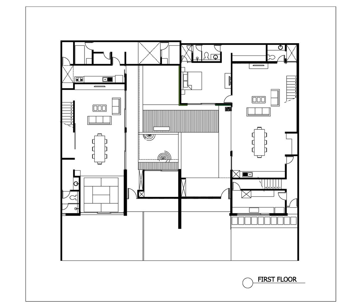
The two homes offer exceptional living conditions for two families, and they feature three main characteristics: they are manageable, harmonious and compact. The compact trait is based on a linear room organization, and all rooms face a beautiful courtyard. The entrances of these houses are a part of the courtyard’s terraces, which act as an intermediary space between the public and semi-private areas.
The home’s manageability is based on a hierarchical room programming that includes public, semi-private and private living spaces. The private rooms were inserted on the upper floor, while the ground floor features the semi-private spaces such as the family gathering areas and the dining room. The public area is represented by the courtyard.
From the architect:
This modern house is actually two houses being designed as one building. Two families live there. It was built in 2011 to 2013 on a relatively even site of 597 square metres and designed in accordance to the Owner’s wishes, that is, to become a manageable, compact and harmonious house.
Manageable means that the house has a hierarchical room programming according to the public, semi-private and private areas. The private area are on the upper floor whereas the ground floor is made to accommodate semi-private activities such as dining and family gathering on each house. The courtyard is meant as a public area as well as an intermediary between the houses.
Compact means that it has a linear room organization and all rooms are facing the courtyard. Even the entrance to these houses is part of the courtyard’s terrace. This courtyard is also to allow maximum natural light and air into each house while the terrace becomes an intermediation between public and semi-private areas.
Having a limitation of void as a green open space, the concept of green wall or vertical garden is applied in combination with a pond to bring cosiness. Ulin wood is placed for floor covering that connects the two houses to bring more tropical nuance while the green wall is to reduce the heat of sunlight from the West. To unite all elements of exterior, interior and landscape, we combines variety of materials such as wood, marble, travertine, basalt stone, iron and cement.
Openings at the frontage are limited due to its orientation towards the West. However, the facade is made under a singular concept so as to look like a compact building.
- Architects: Pranala Associates
- Location: Bandung, Bandung City, West Java, Indonesia
- Architects in Charge: Ronald Pallencaoe, Erick Laurentius
- Contractor: Bambang Wijono
- Area: 597.0 sqm
- Project Year: 2013
- Photographs: Hamdan Hidayat, M. Ifran Nurdin












More Similar Articles Like This
Seamlessly Apartment by the Beach by ZZ Architects
Stunning Banyan Tree Ungasan Bali in Indonesia
The Superb Maradiva Villas Resort & Spa in Mauritius
Different Types Of Foundations For Summer Houses and Garden Buildings
Secluded Naladhu Island in Maldives
Marvelous Anantara Dhigu Resort
Best paint colors for the living room
The Sophisticated Casa Villa Flamingo in Spain