In this article:
A walk-in closet is the foundation of all modern interiors. It makes it easy to maintain cleanliness and order in an apartment. Many of our clients turn to us to set up such a space in their apartments, even if it is not included in the plan. This article discusses the main stages of creating a walk-in closet.
Working with Apartment Space
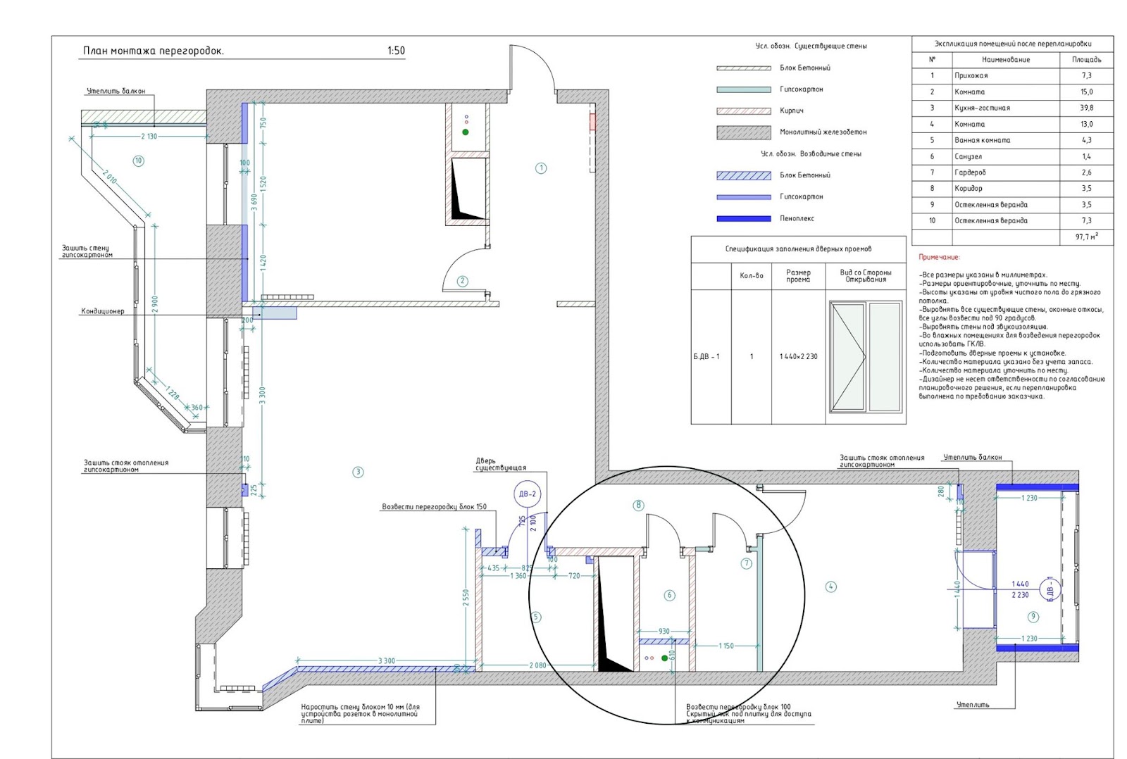
Some apartments do not have a walk-in closet. If it is not included in the plan, it needs to be created. For this, the designer remodels the space.
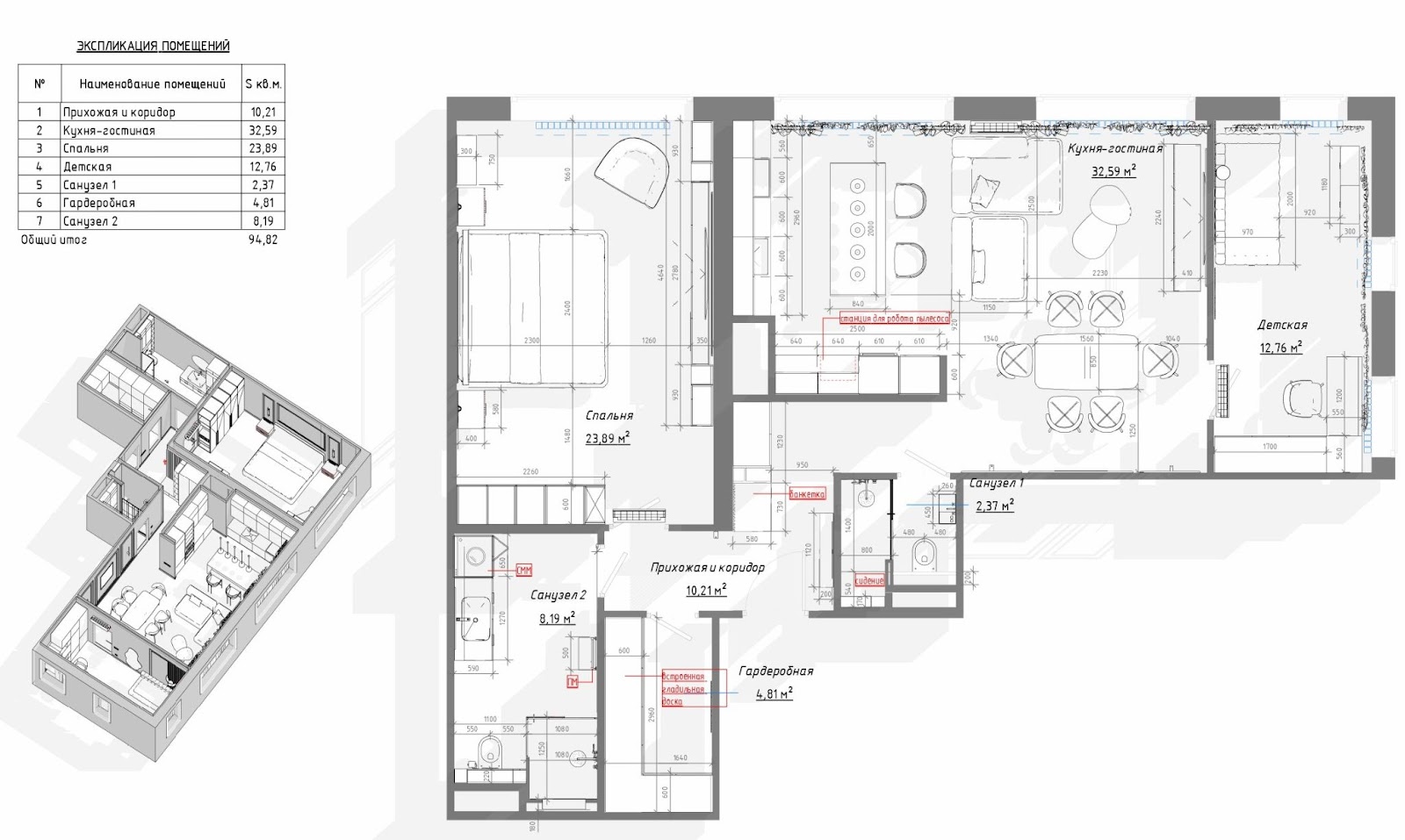
Photo: Apartment plan with a walk-in closet
The walk-in closet area can be separated from the bedroom, living room, or hallway. It is also possible to create a walk-in closet from a pantry or a second bathroom. The designer chooses the optimal option based on the client’s preferences. For example, if the walk-in closet will be used by one person, it can be made 2 m² in size; a walk-in closet for a family will need to be larger.
Photo: In this layout, a walk-in closet has been added
Planning the Interior Space of the Walk-in Closet
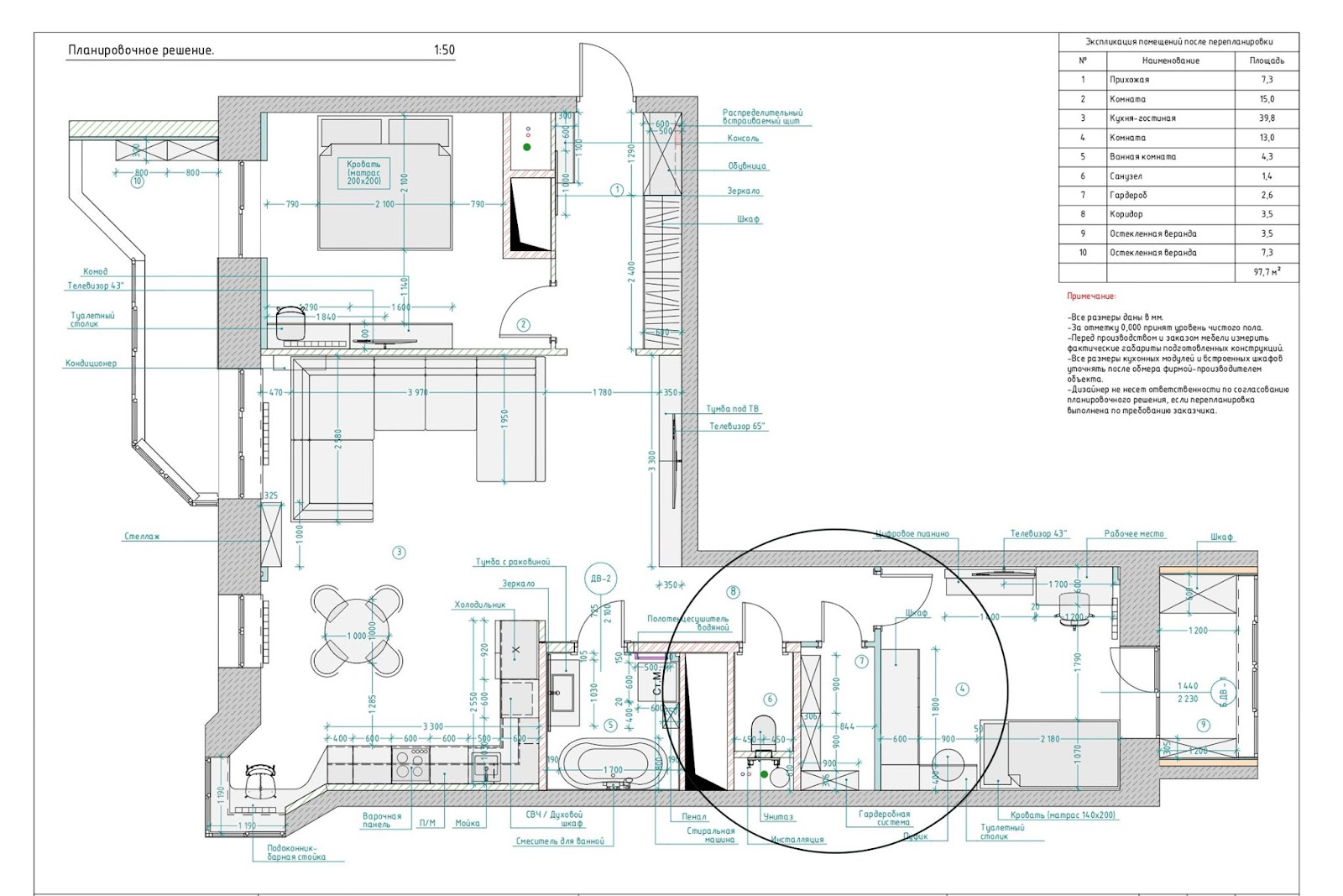
Once the redesign is complete and the walk-in closet appears on the drawings, the designer plans the layout of the furniture and appliances. The walk-in closet can be L-shaped or U-shaped.
Photo: In this apartment, the walk-in closet will be L-shaped. This furniture arrangement is optimal for narrow spaces.
An L-shaped walk-in closet is suitable for narrow spaces; if the room is wider than two meters, a U-shaped design is used.
Photo: Walk-in closet visualizations
Choosing Finishes for the Walk-in Closet
The finishes of the walk-in closet usually match the overall style of the apartment. In the visualizations, the designer can choose the color of the finishes, the style of the furniture, and the decor together with the client.
Photo: Interior of the walk-in closet
If space allows, the walk-in closet can include the installation of a washing machine and dryer, a place for an ironing board, and a large mirror for trying on clothes. All of this is planned at the drawing stage and then illustrated in the visualizations.
Photo: Interior of the walk-in closet with a washing machine and dryer
Manufacturing or Selecting Furniture for the Walk-in Closet
Once the designer has created the visualizations, the furniture maker comes into play. We have our own furniture production, so our clients do not need to look for contractors who can draw up furniture designs and manufacture them. The furniture maker studies the visualizations and discusses with the client the materials for the furniture, fittings, drawers, and everything else.
Photo: Furniture for the walk-in closet
While the apartment is being renovated, all the furniture will be manufactured at the factory, and when the time comes, it will be delivered to the apartment and installed by assemblers.
Conclusion
In our company, specialists take full responsibility for organizing the walk-in closet. The specialists will remodel the space, select finishes, and furniture.
If you are planning a renovation, contact us on Whatsapp, and we will calculate the cost of the work along with the materials.









More Similar Articles Like This
Outstanding Bodrum Houses in Yalikavak, Turkey
Stunning Banyan Tree Ungasan Bali in Indonesia
Beautiful Apartment in Stockholm for $1 Million
Wonderful Yachting Club Villas at Elounda Beach by Davide Macullo Architects
Exploring the New World of Luxury Hoteling
Vibrant Concrete Floor Paint Colors to Elevate Your Space
5 Ways to Turn Your Yard Into a Fancy Space
Astonishing El Tovar by the Sea