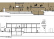
When creating this beautiful two-story home in Mexico City, Mexico, A-001 Taller de Arquitectura did not take ‘gravity’ as an answer.
The upper floor seems a black floating block, which is sustained only by several metal pipes. The inside of the house is characterized by large spaces that open to the outside. The entire house is made of cubic spaces with subtle transitions, creating the impression of a large, open area.
Photos by: Santiago Arnau, Eduardo Gorozpe















































































More Similar Articles Like This
Saguaro Palm Springs by Joie de Vivre
Green Gables Home In Fairfield, Connecticut, United States
Different Types Of Foundations For Summer Houses and Garden Buildings
Dreamy Oceanfront Chateau In West Vancouver, Canada
Beautiful Apartment in Stockholm for $1 Million
Spectacular Luxury House in Sarasota, Florida by DSDG Inc. Architects
Plain Geometric Residence Designed by Lidija Dragisic
The Sophisticated Casa Villa Flamingo in Spain