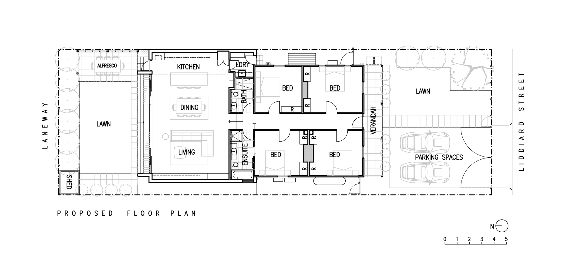
Sustainable and comfortable, this house in Hawthorn, Victoria, Australia is the result of a renovation and expansion program that was completed in 2014 by a company named Chan Architecture. The main challenge faced by the architects involved creating a smooth transition between the new and old parts of the residence while ensuring that the new areas would be filled with natural light. They decided to insert a black timber-lined box between the two areas, and this box contains a pair of bedrooms on both sides that can be accessed with the help of hidden doors.
The main living area is connected to a garden and features openable stacker doors that blur the limits between the backyard and the rest of the house. This fading of boundaries also contributes to the abode’s sustainability during the cold season, as it allows natural light to enter the living spaces without obstruction.
The materials used for this unique project include blackbutt for the floors, linen for the curtains and plywood for the ceiling. Since we mentioned sustainability, it’s also worth noting that the residence boasts shaded double glazed windows on its northern side as well as fully openable windows on opposite sides, which contribute to natural ventilation. The roof can be used to harvest rainwater, while solar energy is used to provide heating whenever needed.
From the architect:
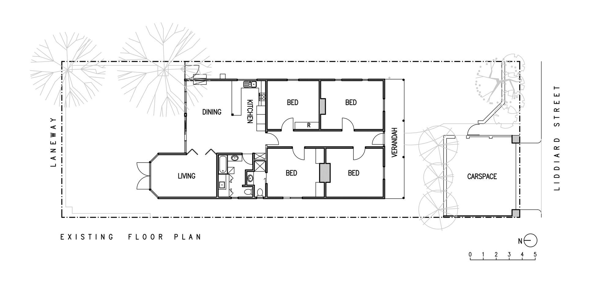
Renovating and extending a typical Victorian terrace always poses a unique set of challenges. The blocks are often long and narrow, with a symmetrical arrangement of period-style bedrooms at the front of the house divided by a central corridor, leading out to a small lean-to structure that was typically constructed in the 1960s and 70s. This creates a house that has the ‘nice’ part of the house at the front, whereas the rear living spaces are often small, dark, cramped and often awkwardly planned.
So the main challenges with any extension such as this are firstly how to seamlessly transition from the old part of the house to the new, and how to create a sense of spaciousness and light in the new living spaces, whilst sill respecting the original building.
Our approach was to firstly separate the new and the old via the insertion of a black timber-lined box, containing the two bathrooms on both sides accessed via hidden doors. This created a clear visual break between the new and the old, as well as create a sense of drama when one walks through the dark corridor with the lowered ceiling into the new light-filled living space.
The new living area opens up towards the garden, via a raked ceiling and fully openable stacker doors to allow the backyard to be part of the house, allow sunlight to penetrate into the living spaces in the winter months, and allow for natural ventilation to run through the entire house.
Whilst the living, dining and kitchen areas are part of the same area, they have been defined by the pendant light fittings, furniture and soft floor furnishings.
The material palette was carefully chosen to provide softness and warmth to the clean lines of the design, by using natural materials such as plywood on the ceiling, the sheer linen curtains and the blackbutt flooring. At the same time the detailing was carefully considered via concealed pelmets for furnishings and lighting, concealed fixings of ceiling linings, flooring and joinery, and minimal use of handles so as to not distract from the form and expression of the design.
From a sustainability perspective, passive design principles were adopted throughout, including shaded double glazed windows to the north preventing heat in the summer and allowing sunlight in the winter, large openable windows on opposite ends of the house for natural ventilation, recycling water from the roof and laundry, solar panels to generate power and extensive insulation and sealing to prevent heat loss. This all combines to create a dwelling that requires almost no artificial heating or cooling.
Often the simplest concepts require the most consideration to allow the ideas to flow through from the overall vision to the smallest details. Simple clean lines with carefully detailed junctions, a balanced selection of materials and colours, proper orientation and integration of sustainability principles can create a home that is modern, comfortable, and most importantly, livable.
Builder: Finney Constructions
Structural Engineer: Jonicha Consulting Engineers
Building Surveyor: Wilsmore Nelson Group
Project Team: Anthony Chan, Michelle Ng
Year: 2014
Photographs: Folded Bird Photography – Brendan Finn












More Similar Articles Like This
Seamlessly Apartment by the Beach by ZZ Architects
Wonderful Yachting Club Villas at Elounda Beach by Davide Macullo Architects
Heavenly Lily Beach Resort & Spa In Huvahendhoo, Maldives
Exquisite Crossacres Mansion In Surrey, England
Marvelous Anantara Dhigu Resort
Superb Luxury Penthouse in Portomaso, Malta
Loving Luxury at Mardan Palace Resort, Turkey
Exploring the New World of Luxury Hoteling