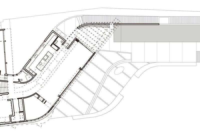
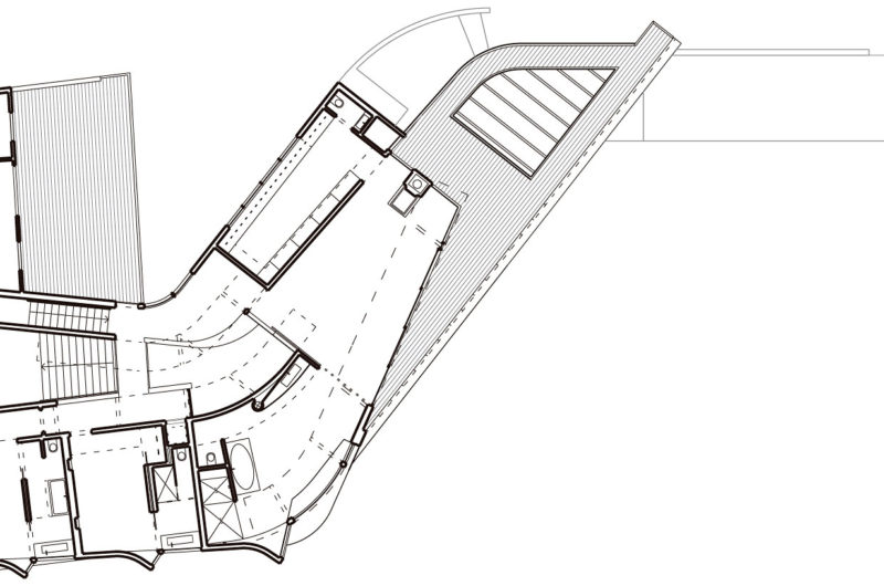
Point Dume Residence was completed in 2010 by the California-based architectural firm Griffin Enright Architects with dedication, perseverance and conscientiousness. The design of this miraculous 6,598 square foot residence has a lot of benefits due to its location at the top of Point Dume in Malibu, California, providing spectacular views of the Pacific Ocean.
To design such a house you must have style and good taste running through your veins. When viewing these pictures, you don’t know whether to admire the house or to peek at the surroundings. This estate was built with such meticulosity that it seems the architects wanted to compete with the perfection of the nature.
































More Similar Articles Like This
Exquisite Crossacres Mansion In Surrey, England
Different Types Of Foundations For Summer Houses and Garden Buildings
Gorgeous And Spacious Home In Sunset Strip
Dreamy Oceanfront Chateau In West Vancouver, Canada
Beach House CN – A Superb Contemporary Home in Peru
Extraordinary Constance Halaveli Maldives Resort
Benjamin Moore Exterior Paint: Vibrant Shades for a Striking Home
The Sophisticated Casa Villa Flamingo in Spain