The Mill Valley Residence was completed in 2011 by the American architectural firm CCS Architecture. It’s a 5,000 square foot contemporary home and is located in Marin, California, USA.
The inspiration for designing this house came from the vast view of Mt. Tamalpais, groves of redwood trees and a steep of incline.
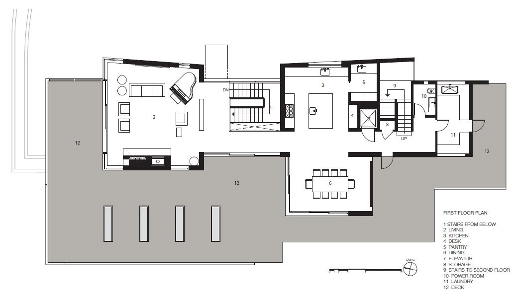
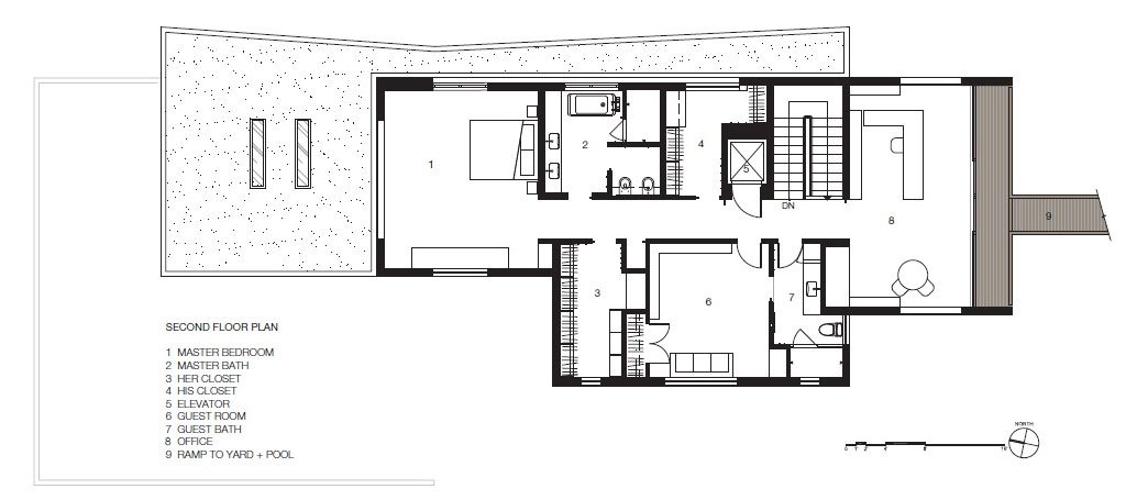
The home is divided into three levels, the lower floor being built into the hillside and the upper two providing incredible views and being flooded by natural light. The first floor accommodates the garage, the entry, the painting studio, the gallery and the guest quarters. The top floor features two bedrooms, the home office and also a ramped bridge that leads to the yard and pool.
The second floor is wrapped into natural copper which is also the main exterior material that emphasized the building. The interior design gives one a feeling of a gallery in the country because of the white walls, expanses of glass and wide-plank oak floors.






















More Similar Articles Like This
Marvelous Anantara Dhigu Resort
Loving Luxury at Mardan Palace Resort, Turkey
Exquisite Crossacres Mansion In Surrey, England
How Seattle Lawn Care Service Deals With Overgrown Lawns
Secluded Naladhu Island in Maldives
Beach House CN – A Superb Contemporary Home in Peru
Boracay Resort & Spa in the Fascinating Philippines
The Sophisticated Casa Villa Flamingo in Spain