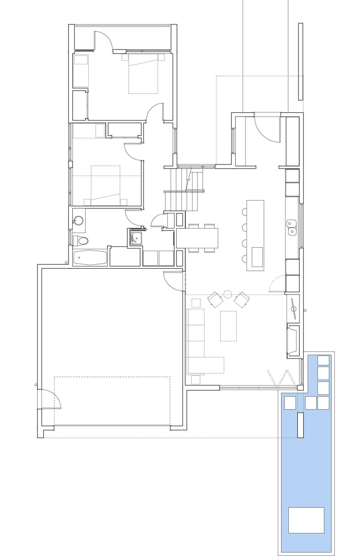
The House on Chilliwack Street in New Westminster, a suburb of Vancouver, Canada was designed by Randy Bens Architect. The original idea of the project consisted in adding a new floor to an existing 1950’s split level residence but they gave it up because of some unforeseen conditions that caused the removal of the old house.
The present construction is all new but it still preserves some hits of the old one. It is very spacious and due to the natural and bright colors used for the walls and for most of the furniture, was created a sense of privacy, tranquility and coziness.




















More Similar Articles Like This
The Superb Villa Verai on Phuket Island, Thailand
Opulent Mandarin Oriental Hotel in Paris
Gayton Road Residence by Paxton Locher Studio
Marvelous Anantara Dhigu Resort
Stunning Sustainable Home in Costa Rica by SPG Architects
How Seattle Lawn Care Service Deals With Overgrown Lawns
5 Ways to Turn Your Yard Into a Fancy Space
Heavenly Lily Beach Resort & Spa In Huvahendhoo, Maldives