This wonderful home in nature was designed by Kidosaki Architects Studio and completed in 2011 on a beautiful site in Asamayama, Aichi Prefecture, Japan. The search for this perfect environment took several years, but the effort was totally worth it.
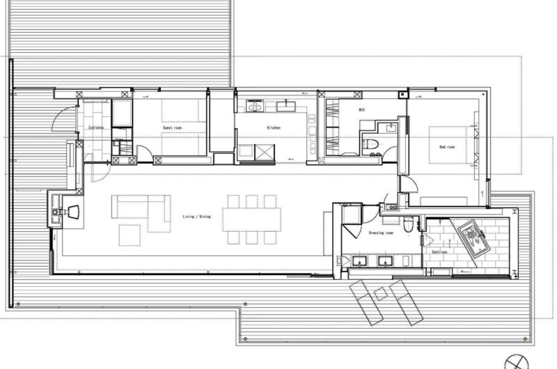
The house takes full advantage of superb views towards Mt. Asama and the many surrounding trees. It’s no surprise that the architects felt compelled to connect these amazing vistas with the luxurious interiors. The elegant living and dining area, the bathroom and the terrace are the spaces which make the most of the available views.
Photo by Junji Kojima


























More Similar Articles Like This
Astonishing El Tovar by the Sea
Gorgeous And Spacious Home In Sunset Strip
These Top Tips Will Help You to Turn Your Garden into the Ultimate Glamping Site!
Stunning Sustainable Home in Costa Rica by SPG Architects
Amazing Four Seasons Resort Bora Bora
Opulent Mandarin Oriental Hotel in Paris
Shadowed Depths: Vintage-inspired Paint Colors for Dark Basements
Marvelous Anantara Dhigu Resort