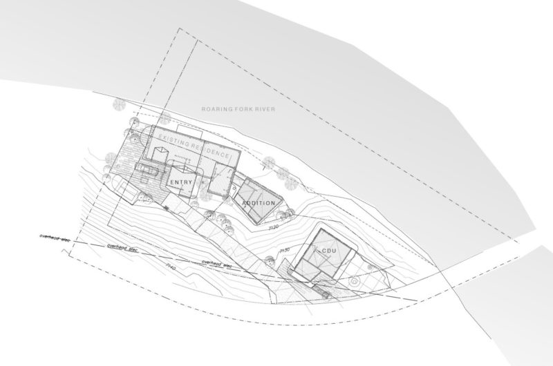
Piampiano residence is a contemporary project based on the conversion of an old house into a modern and elegant home located in Woody Creek, Colorado. The process of remodeling consisted in transforming the existing architecture into a series of additions and new elements in order to unify the new house, eliminating the boundary of existing and new.
The new structure blends perfectly with the landscape, completing each other and creating the perfect picture.
The one of a kind residence was completed by Studio B Architects, who have used various materials, both for the exterior and the interior in order to deliver a high-level of design and architecture on a tight budget.
























More Similar Articles Like This
Astonishing El Tovar by the Sea
6 Garden and Lawn Tips to Get Ready for Spring
How Seattle Lawn Care Service Deals With Overgrown Lawns
Extraordinary Constance Halaveli Maldives Resort
Opulent Mandarin Oriental Hotel in Paris
These Top Tips Will Help You to Turn Your Garden into the Ultimate Glamping Site!
Pure Perfection: Discover the Top White Paint Colors for a Flawless Décor
Marvelous Anantara Dhigu Resort