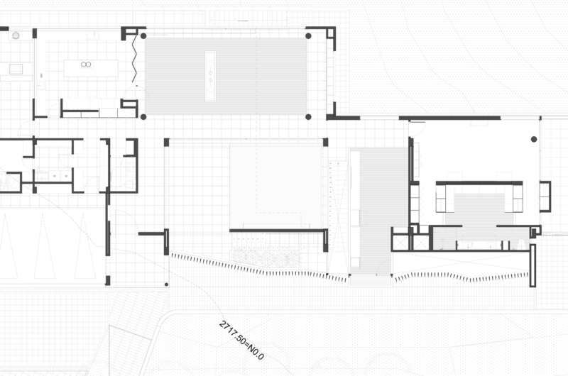
Located in La Calera, Colombia this beautiful home by Campuzano Architects is called AR House. It was completed in 2012 on a sloping terrain, and it takes full advantage of the nearby mountain views. To ensure the best possible panoramas, the main spaces were set in a longitudinal scheme, and they feature huge windows and sliding glass walls.
At the core of the construction there is a central courtyard with a lovely water feature. This area contributes to the natural ventilation and lighting of the surrounding living area. Below the access level and social spaces there is an office, a spa, and some secondary bedrooms, which communicate with the private garden at the back of the house.
As opposed tot the transparency of the living, dining and kitchen areas, the more private areas are situated in a rather opaque volume which cantilevers over the open ground level. The limited color palette of the house is brightened up by the green roof, which has both an insulation purpose and an important visual role.







More Similar Articles Like This
Lovelli Residence: Mediterranean-Style Dwelling in Bali
Benjamin Moore Exterior Paint: Vibrant Shades for a Striking Home
Gayton Road Residence by Paxton Locher Studio
Boracay Resort & Spa in the Fascinating Philippines
Outstanding Bodrum Houses in Yalikavak, Turkey
Exceptional Coronado Bay Front Estate in California
Exploring the New World of Luxury Hoteling
Extraordinary Constance Halaveli Maldives Resort