Bossley Architect’s have completed the Brown Vujcich House in 2009. The architectural piece is located in Herne Bay, Auckland, New Zealand, on a narrow urban site in the heart of Herne Bay. A moat of planting welcomes you from the entrance as you step onto the bridge. The entry space is shrouded in translucent glass and is protected by a vertical cedar screen.
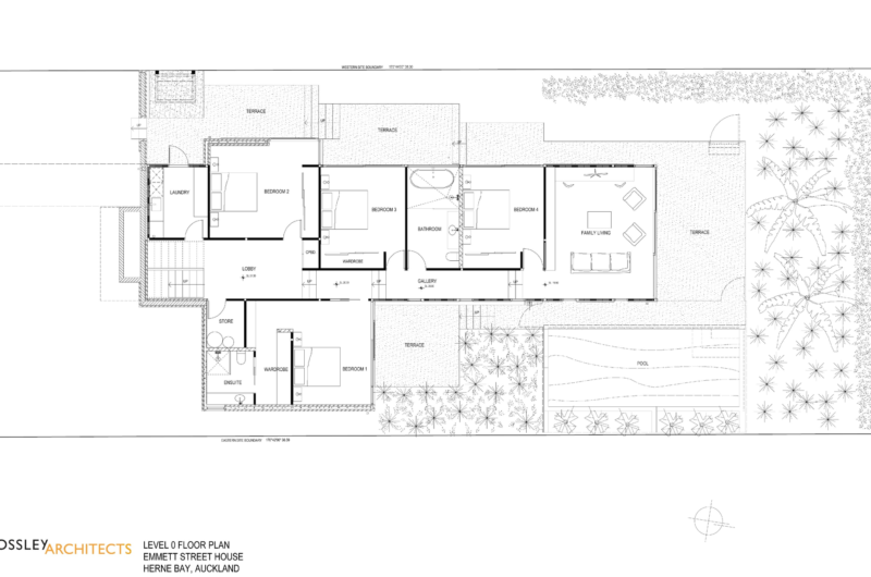
The lower level is an open space that is linked to the surrounding space, with a terrace and outdoor area for each room.
The family living space creates the access towards the terrace and the pool. An interesting element is the double skin bagged brick, which reflects the owners’ love of fifties and sixties architecture.
Photos by Patrick Reynolds














More Similar Articles Like This
How Seattle Lawn Care Service Deals With Overgrown Lawns
Saguaro Palm Springs by Joie de Vivre
Outstanding Bodrum Houses in Yalikavak, Turkey
Different Types Of Foundations For Summer Houses and Garden Buildings
Loving Luxury at Mardan Palace Resort, Turkey
Stunning Banyan Tree Ungasan Bali in Indonesia
Best paint colors for the living room
6 Garden and Lawn Tips to Get Ready for Spring