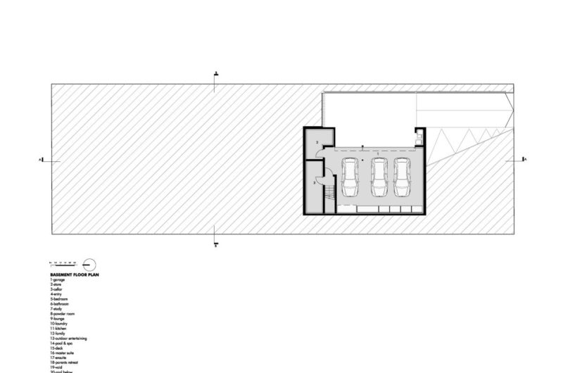
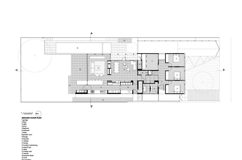
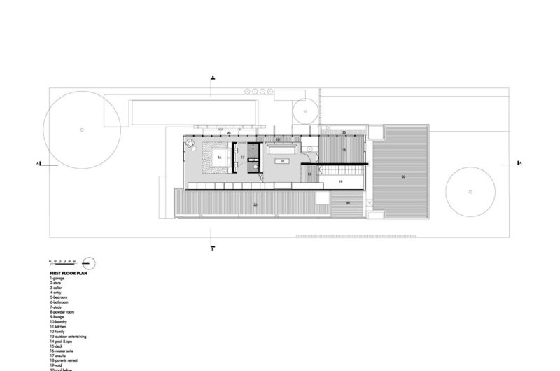
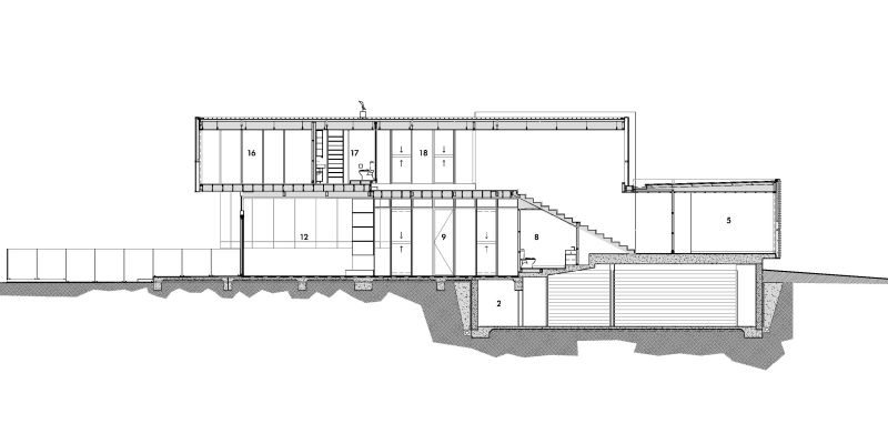
The Good Residence was designed by Crone Partners according to owner’s wish list. Located in Melbourne, Australia, this residence is a true masterpiece because the architects have been working closely to pay great attention to all details, trying to satisfy the pickiest wishes. The estate combines simple and rectangular forms, each area being specifically delimited. What define it are the high ceilings, the wide glass walls that permit light to enter every corner of the residence, the welcoming interior and the fine materials.
Because of its unique design and position, the house little relies on the heating and cooling system also providing easy access to the outdoor area and connecting to interactive informal space that serves for the alternative of day to day living.





















More Similar Articles Like This
Benjamin Moore Exterior Paint: Vibrant Shades for a Striking Home
6 Garden and Lawn Tips to Get Ready for Spring
Boracay Resort & Spa in the Fascinating Philippines
Beach House CN – A Superb Contemporary Home in Peru
Spectacular Luxury House in Sarasota, Florida by DSDG Inc. Architects
Best paint colors for the living room
Lovelli Residence: Mediterranean-Style Dwelling in Bali
Spectacular Rooftop Apartment by Innocad