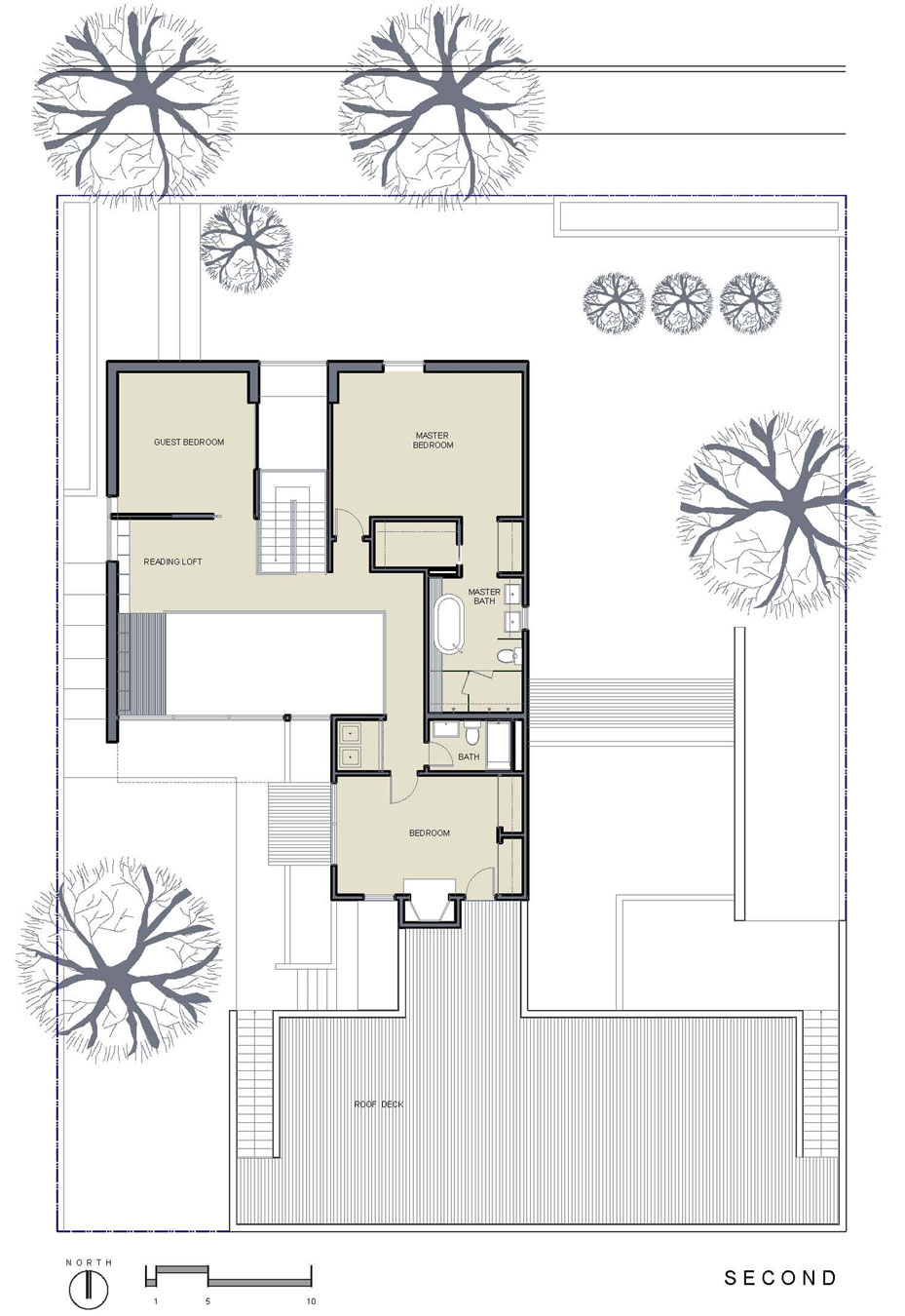
The Bucktown Three is a 5,000 square foot contemporary home completed in 2010 by the Chicago-based architectural firm Studio Dwell Architects. It is located in Chicago, Illinois, USA in a tight urban location.
Light, transparency, continued special flow and privacy were vital for this residence from the very beginning. The solution consisted in creating open, fluid interior spaces wrapped in white masonry. The reflective white surfaces and the use of glass railings are the reasons why the interior of the house seems to be so enlightened.
The two existing surrounding exterior landscapes are creating an urban retreat perfect for everyday living.
Photos by Marty Peters































More Similar Articles Like This
Spectacular Rooftop Apartment by Innocad
Dreamy Oceanfront Chateau In West Vancouver, Canada
Behr’s Brilliant Blues: 70 Shades of Stunning Paint Colors
Exploring the New World of Luxury Hoteling
10 Different Types of Blue Paint Colors
Boracay Resort & Spa in the Fascinating Philippines
Gorgeous And Spacious Home In Sunset Strip
These Top Tips Will Help You to Turn Your Garden into the Ultimate Glamping Site!