Ty-Hedfan is a house designed by Featherstone Young architects in Brecon, Wales. With a project area of 2400 sq ft, the designer had to include and put in a bright light the unique positioning of this house. It was placed above a river, on the highest place of a valley, with views towards the unique landscape of Brecon Beacons National Park. Two rivers cross the property and the architects figured that this could be the emblem of the new house, naming it Ty-Hedfan which translates to “hovering house”.
The inspiration for this house came from the traditional Welsh homes that had a long form. The architects took that form, mixed it with the characteristics of the land it was set on and filled it up with local materials.
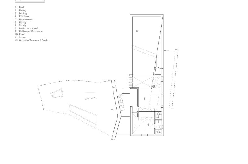
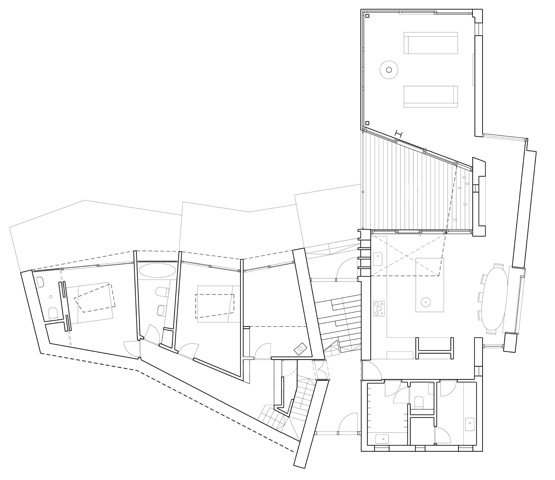
Two wings compose this cantilevered house that seems to rise from the sloping ground. The wing that includes the two guest bedrooms, a study room and has the view over the riverside deck is perpendicular to the main wing. The garden extends over the roof of this perpendicular wing, while the main wing includes the living and dining rooms, kitchen, two bedrooms and bathrooms.
As for materials, the architects used slate and stone and preferred to include some of the garden into the design.






















More Similar Articles Like This
Different Types Of Foundations For Summer Houses and Garden Buildings
Stunning Banyan Tree Ungasan Bali in Indonesia
Amazing Four Seasons Resort Bora Bora
Heavenly Lily Beach Resort & Spa In Huvahendhoo, Maldives
Beautiful Apartment in Stockholm for $1 Million
Best paint colors for the living room
Saguaro Palm Springs by Joie de Vivre
Gayton Road Residence by Paxton Locher Studio