The fabulous Drolet Residence is the result of a renovation endeavor carried out by NatureHumaine in Montreal, Canada. The original home was purchased by a couple that wanted to be able to indulge in their passion for cooking and entertaining. They wanted to move the living areas to the second floor so that they would benefit from ample natural light, and they also requested a spacious kitchen island that would serve as the primary focus of the residence.
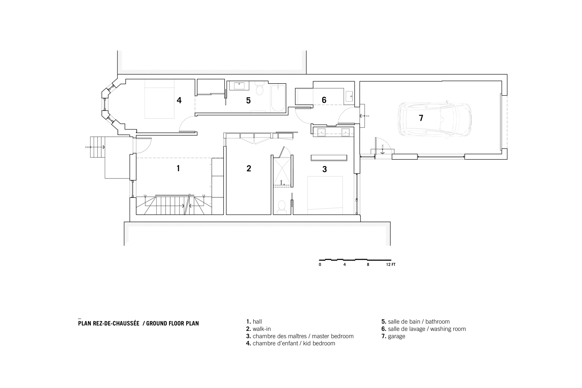
The bedrooms are found at the ground floor, where they enjoy utmost privacy. Access between the two levels is achieved via a sculptural staircase that can be observed from the entry foyer. The dining area, living room and kitchen are included in an open plan space, and they are all neatly organized around a linear island that boasts a soap stone countertop. This open plan is flooded with natural light throughout the day due to a linear skylight. Some of the kitchen appliances as well as the powder room and the pantry storage are hidden from sight by a block of cabinets.
The main island splits at the rear of the residence and forms a secondary island that is used as a breakfast space. The Drolet Residence flaunts 3,000 square feet of living space.
From the architect:
A couple with a passion for cooking acquired a house on Drolet street right by Montreal’s Jean-Talon market. They wanted to do a complete renovation and re-organization of the house and had 2 main demands; firstly they wanted a large kitchen island to be the focal point of the house, and secondly they wanted their living spaces on the second floor where they would benefit from more natural light, while keeping the more intimate bedroom spaces on the ground floor.
The front door opens onto a double height entry foyer where a sculptural stair draws the focus upwards. The lines of the stair invite the natural and fluid transition from the ground floor entrance to the living spaces above.
The open plan kitchen, living and dining room are found on the brightly lit second floor. These are all organized around a long linear island topped by a beautiful soap stone countertop. The island basks in natural light as a linear skylight follows its lines directly above. The skylight is interrupted by a monolithic range that protrudes from the ceiling above.
A block of cabinets, clad in a mix of anigre veneer and lacquered doors, is recessed into the wall behind the island. This block conceals the fridge as well as other appliances, pantry storage and a powder room. Towards the back of the house, the island breaks-off, into a second island that cantilevers into a brightly lit corner becoming the family’s breakfast table. Here, a patio door leads to a large exterior terrace overlooking the backyard.
Area: 3000.0 ft2
Year: 2014
Photographs: Adrien Williams
















More Similar Articles Like This
Santa Barbara Style Home in Paradise Valley, Phoenix
Different Types Of Foundations For Summer Houses and Garden Buildings
Spectacular Rooftop Apartment by Innocad
Green Gables Home In Fairfield, Connecticut, United States
Best paint colors for the living room
Benjamin Moore Exterior Paint: Vibrant Shades for a Striking Home
Beach House CN – A Superb Contemporary Home in Peru
The JKC1 House in Bukit Timah, Singapore