House M was built in 2015 in Slovenia by SoNo Arhitekti, and it boasts 3,121 square feet of living space. It comes with a unique design based on three volumes, each featuring its own gabled roof. The volumes are linked at ground level and create a roomy central space that incorporates a kitchen and a dining room where the family members spend most of their time.
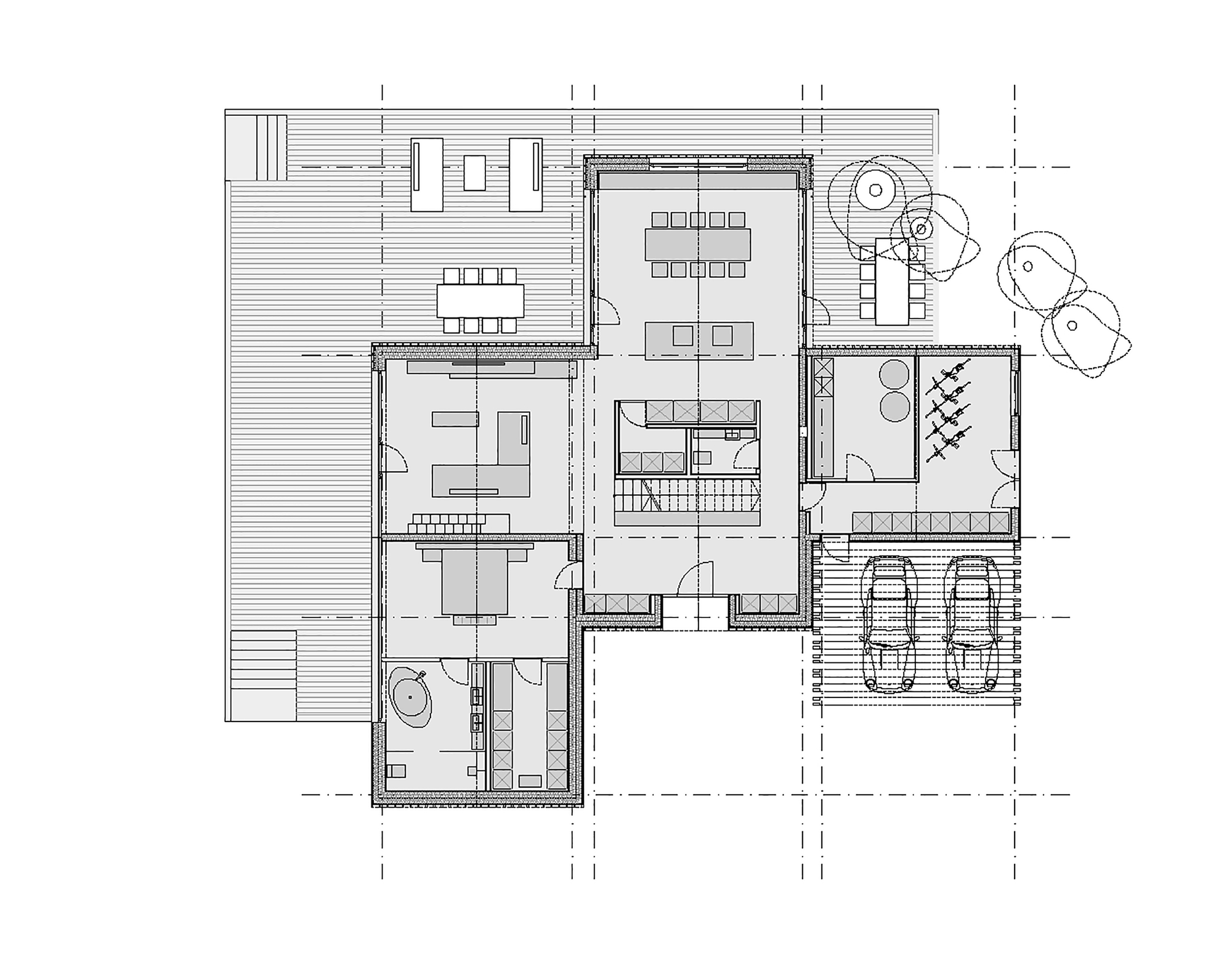
The upper floor of the central volume includes a private bathroom, walk-in closets and sleeping rooms for the children. The heart of the structure is the central staircase, which provides quick and easy access to the most important parts of the abode.
The facade contrasts nicely due to a mix of dark and light shades, and it is surrounded by birch groves that can be admired from the ground floor through large glass windows. There’s also an outdoor deck that overlooks the nearby meadows and ensures perfect relaxation opportunities for the residing family.
From the architect:
Exterior
One-family villa M is located in an area, which represents a typical Slovenian landscape. That is why the design derives from standard architectural elements, from which, one is dominant – the gable roof.
The house is made out of three elongated volumes with symmetrical gable roofs, which are set in a way that creates a dynamic ground floor’s organisation. It accomodates and serves the needs of the modern family and provides the highest level of comfort and quality living.
Uniformed facade and roof’s form emphasize the dynamic of the three volumes especially with the combination of dark and light colour shades as well as the use of the materials themselves – pattern of wood panels and fiber-cement panels. Dark-light contrast facade complements the neighboring birch groves and its surrounding landscape. The final result presents a dream house for the investor and a quality addition to the Slovenian residential topography as well.
Interior
One-family villa M is composed out of three elongated elements that shape dynamic floor plans. All three volumes are connected together in the level of the ground floor and form a larger central area where the family spents most of it’s time – kitchen and the dining room.
The whole ground floor is open and light, where the carefully placed large glass surfaces lead to to the outdoor terrace, overlooking the surrounding meadows, hills and forests. Upper floor of the middle volume provides sleeping rooms for the children with private bathroom and walk-in closets.
Color contrast of the interier is not as strong as the exterier’s – prevailing are the natural shades and patterns of wood and white wall surfaces. Dominant element object is the carefully designed central staircase that also represents the heart of the building.
Architects In Charge: Edvard Blažko, Marko Volk, Nina Tešanović
Area: 290.0 sqm
Year: 2015
Photographs: Žiga Lovšin















More Similar Articles Like This
Marvelous Anantara Dhigu Resort
Tips for Choosing the Right Blue Paint Color for Your Dining Room
Gorgeous And Spacious Home In Sunset Strip
Outstanding Bodrum Houses in Yalikavak, Turkey
Behr’s Brilliant Blues: 70 Shades of Stunning Paint Colors
Green Gables Home In Fairfield, Connecticut, United States
Seamlessly Apartment by the Beach by ZZ Architects
Stunning Sustainable Home in Costa Rica by SPG Architects