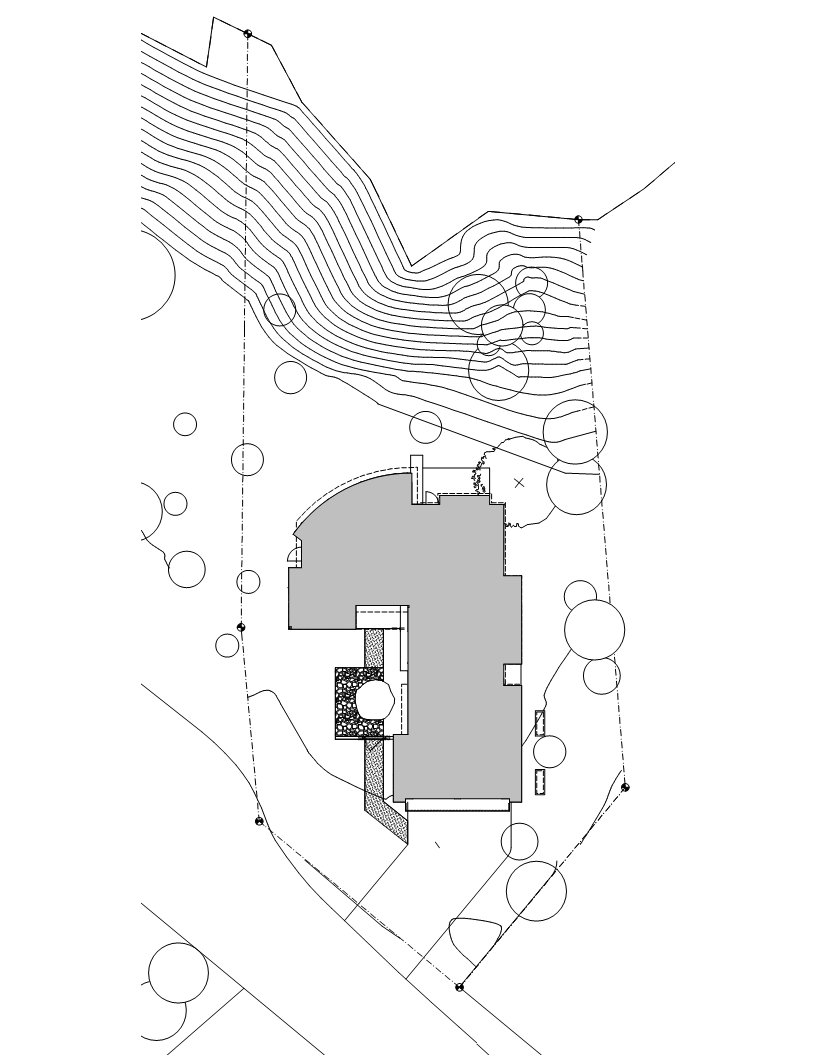
The Sunset Point Residence located in San Juan Island, Washington, was designed by Seattle-based David Vandervort Architects.
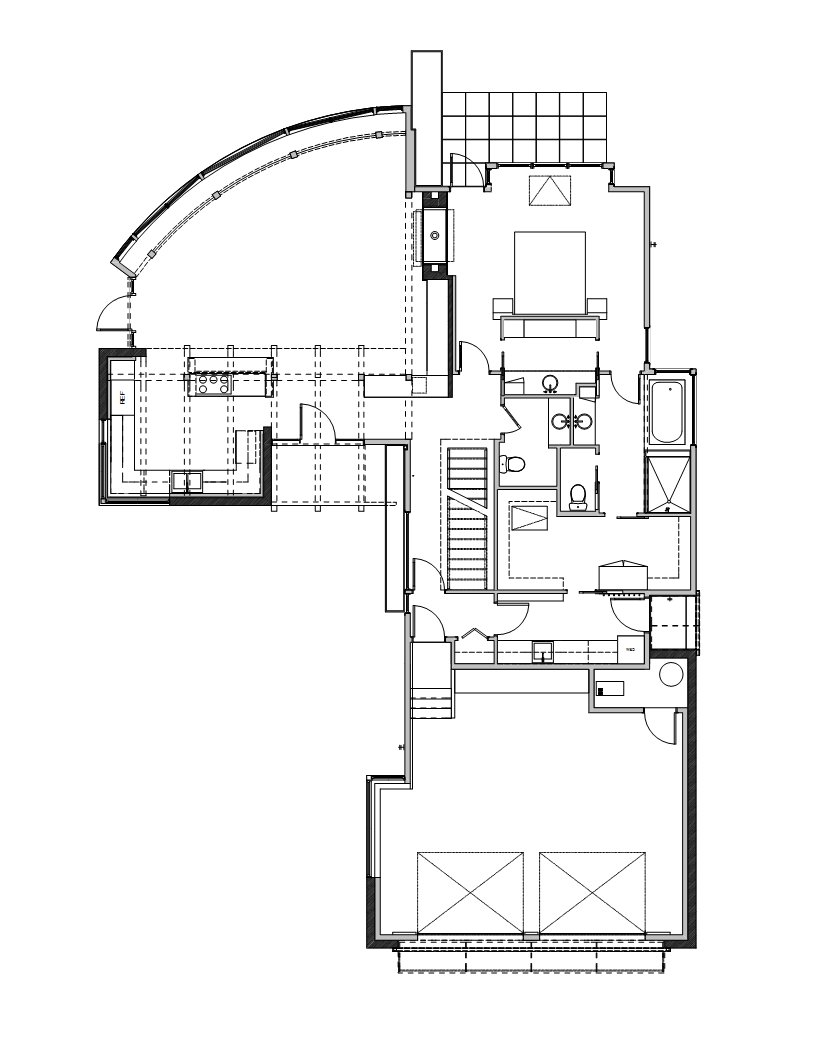
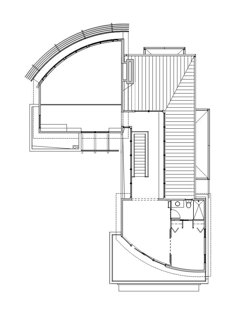
It is a 2,365 sqft home perched on a San Juan Island shoreline, designed with two mirroring curved glass walls that frame the views and let the light flood the indoor space.
Because the couple who wanted the house was seeking for comfort and security, there were used natural materials such as stained cedar siding, hot rolled steel and metal for the roof.
The space is completed by the kitchen and the dining areas which are connected to the outdoor entertaining patio and to the natural landscaping.
Photos by Michael Shopenn
























More Similar Articles Like This
Spectacular Rooftop Apartment by Innocad
The JKC1 House in Bukit Timah, Singapore
Boracay Resort & Spa in the Fascinating Philippines
Outstanding Bodrum Houses in Yalikavak, Turkey
Opulent Mandarin Oriental Hotel in Paris
10 Different Types of Blue Paint Colors
Vibrant Wood Tones: Explore a Spectrum of Spray Paint Colors!
The Sophisticated Casa Villa Flamingo in Spain