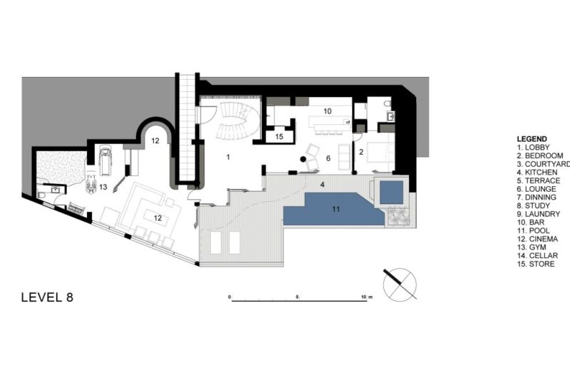
The Clifton View 7 in Cape Town, Africa was designed by Antoni Associates. The wish of the owners was to transform a double-level apartment into a home with four bedrooms, an en-suite, a gym, an entertainment cocktail bar, a cinema room and a wine cellar.
It offers incredible views over the Atlantic Ocean, the Clifton beaches and the Twelve Apostles mountain range.
The apartment can be accessed through the upper level. The dining area acts like a connection point between the spiral staircase and the entertainment space.
A lot of styles and ideas were mixed together to create a unique interior design and to give the apartment its own personality.
From the infinity pool you can see the expanse of the Atlantic City. Isn’t this beautiful or what?




















More Similar Articles Like This
Pure Perfection: Discover the Top White Paint Colors for a Flawless Décor
Benjamin Moore Exterior Paint: Vibrant Shades for a Striking Home
Plain Geometric Residence Designed by Lidija Dragisic
Behr’s Brilliant Blues: 70 Shades of Stunning Paint Colors
Extraordinary Constance Halaveli Maldives Resort
Astonishing El Tovar by the Sea
Marvelous Anantara Dhigu Resort
Exceptional Coronado Bay Front Estate in California