The De Wet 24 House located on Bantry Bay, South Africa was designed by Stefan Antoni Olmesdahl Truen Architects (SAOTA) in collaboration with OKHA Interiors.
It is situated on a steep slope overlooking Bantry Bay and is composed of a dynamic play of volumes within a restricted rectangular envelope.
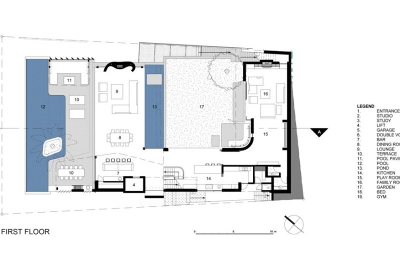
There’s a strong connection between the indoor and the outdoor spaces due to the maximization of the site footprint by the living level.
Interiors: OKHA Interiors

















More Similar Articles Like This
Unique Click Clack Hotel In Bogota, Colombia
Best paint colors for the living room
Gorgeous And Spacious Home In Sunset Strip
Opulent Mandarin Oriental Hotel in Paris
Gayton Road Residence by Paxton Locher Studio
Vibrant Wood Tones: Explore a Spectrum of Spray Paint Colors!
Different Types Of Foundations For Summer Houses and Garden Buildings
The Superb Maradiva Villas Resort & Spa in Mauritius