Completed in 2011, Casa Océano is a three-story contemporary residence designed by architectural firm SPACE. It is located in an upscale neighborhood in Mexico City, Mexico, called Pedregal. The original building was completely upgraded, turning its 1950s classic look into something entirely modern and irresistible.
Larger interiors and lavish outdoor spaces were a must, but the owners also wanted to respect the old project’s character, and not send it into complete oblivion. A large wooden doorway marks the main entrance and leads to a huge living/dining area with a big lineal fireplace nestled into a sandstoned marble wall.
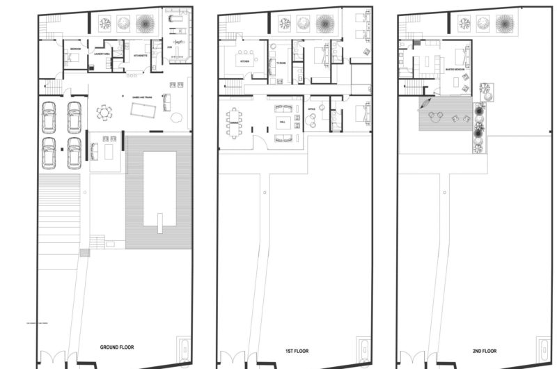
The main corridor of the house is actually the heart of the design, starting at the entrance and ending at a new inside patio. The corridor also offers access to the living room, study, kitchen, three bedrooms, and a staircase which leads up and down to the other floors.
A completely new space in the project is the master suite, which includes a huge naturally lit dressing room, a double bathroom, a generous bedroom, and a private terrace with superb views and comfy hammocks. Other amenities in the house are the library, movie theater, billiards area, mobile glass walls, and much more. A very successful renovation project, we must say.
Photos by: Pim Schalkwijk













More Similar Articles Like This
Vibrant Concrete Floor Paint Colors to Elevate Your Space
Santa Barbara Style Home in Paradise Valley, Phoenix
6 Garden and Lawn Tips to Get Ready for Spring
Gorgeous And Spacious Home In Sunset Strip
Best paint colors for the living room
Spectacular Rooftop Apartment by Innocad
Pure Perfection: Discover the Top White Paint Colors for a Flawless Décor
Stunning Sustainable Home in Costa Rica by SPG Architects