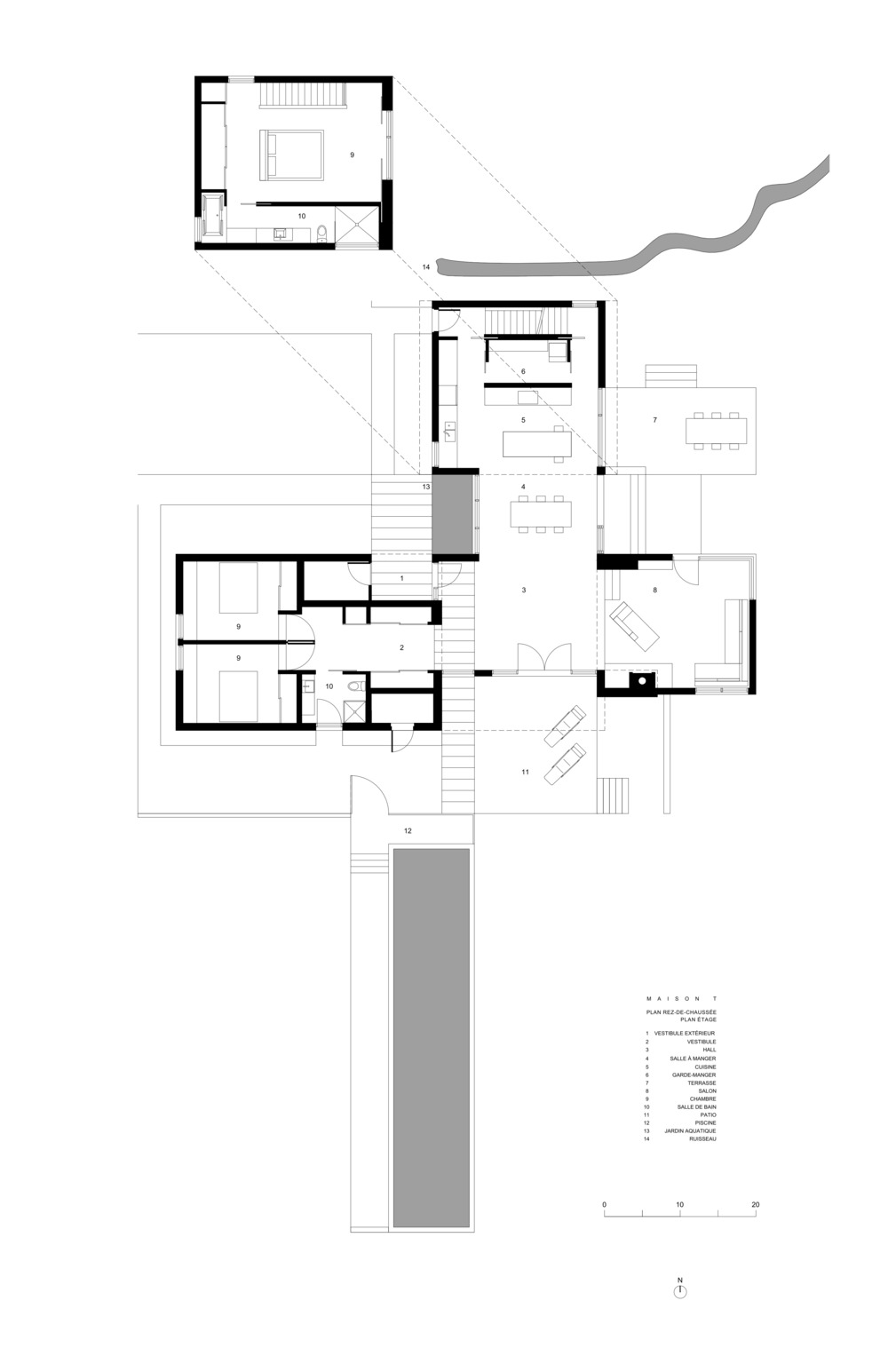
The T House is an outstanding abode that is located in Quebec, Canada, and it was designed by Natalie Dionne Architecture in 2013. The country house features 3,229 square feet of living space and was placed on an elevated location in order to ensure fantastic panoramas of the nearby plains and fields.
The T House flaunts a distinct cruciform plan that includes the home itself as well was the terraces, swimming pool and gardens. However, as its name suggests, the abode itself was designed using 3 separate areas arranged in a T pattern. One part was reserved for the guest accommodations, the second includes the living room and the third houses the master bedroom and kitchen.
These separate areas are linked by the spacious dining room that flaunts exquisite views of the sunrise and mountains. As far as the furniture is concerned, it mostly involves built-in pieces that were sketched out specifically in order to match the unique character of each room. Other details include cozy fireplaces for a touch of rustic elegance as well as a geothermal climate control system that ensures an optimal temperature throughout all living spaces no matter the season.
Photos by Marc Cramer




















More Similar Articles Like This
These Top Tips Will Help You to Turn Your Garden into the Ultimate Glamping Site!
Amazing Four Seasons Resort Bora Bora
Heavenly Lily Beach Resort & Spa In Huvahendhoo, Maldives
Vibrant Wood Tones: Explore a Spectrum of Spray Paint Colors!
Wonderful Yachting Club Villas at Elounda Beach by Davide Macullo Architects
The Sophisticated Casa Villa Flamingo in Spain
Saguaro Palm Springs by Joie de Vivre
Boracay Resort & Spa in the Fascinating Philippines