The 36 SML House was designed by LEVENBETTS and is located in Amagansett, New York, USA, just a stone’s throw away from the sea. Even though it flaunts 8,000 square feet of space, the residence offers informal living areas as well as plenty of opportunities for relaxation and entertainment. It was finished in 2014 and features large open spaces flooded with natural light as well as private living areas. The architects aimed to ensure natural ventilation throughout all rooms in order to minimize the use of air conditioning.
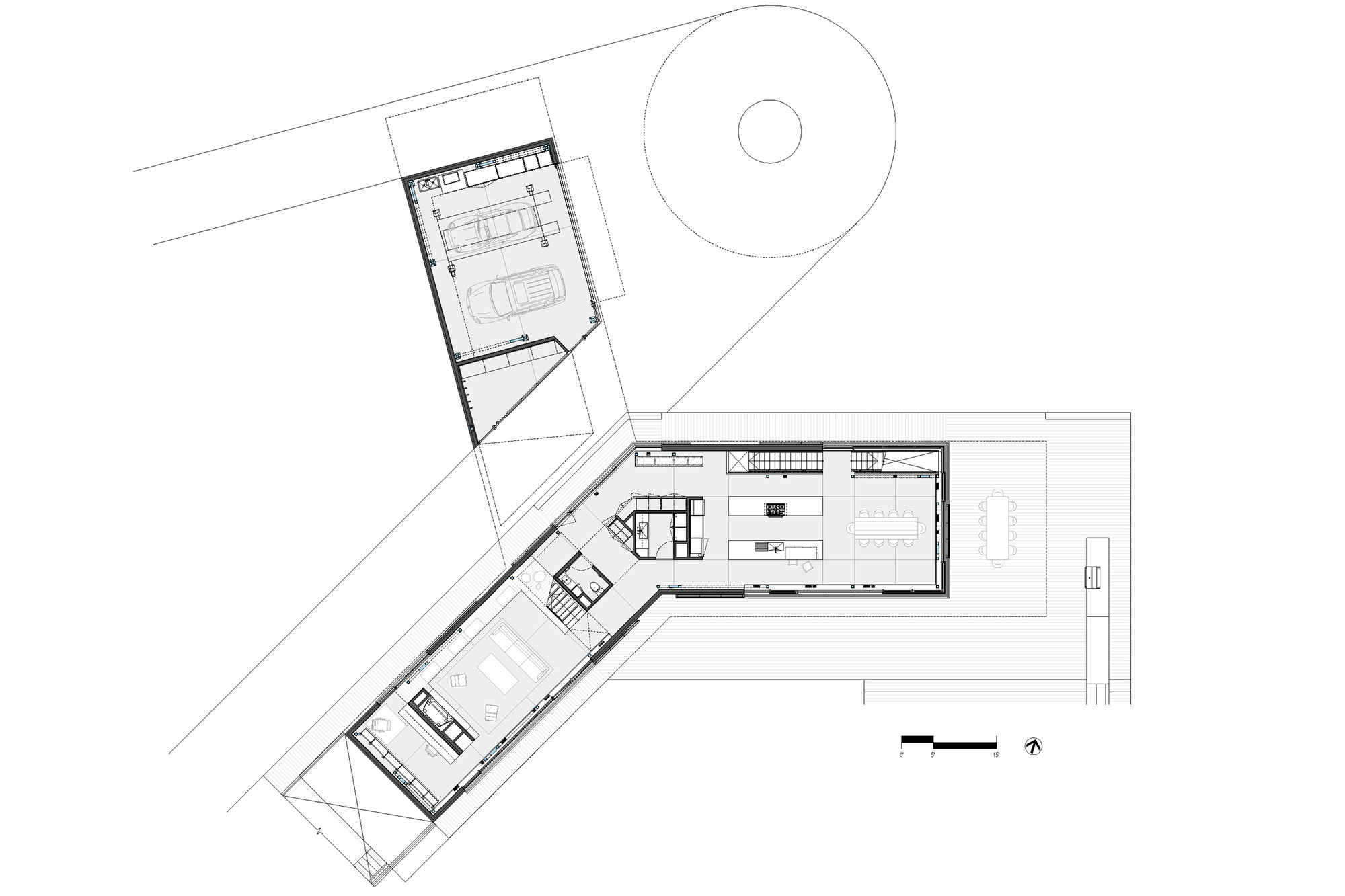
The design is a triple-spoked one that features thin wings connected at an outdoor core. The three wings comprise the kitchen/dining area, the living/study space and a garage, all of which are found at the ground floor. The children’s rooms, the parent’s bedrooms and the guest accommodations were inserted on the second floor. This triple-spoke layout helps create three yards instead of the two that are usually a part of single-family homes. Furthermore, the meeting point of the spokes is traversed by the driveway, which allows easy access to a garage that faces the rear lot. It’s also worth noting that the driveway creates a covered entry space that ensures access directly into the center of the residence.
From the architect:
36SML House is an 8,000 square foot house on a 1 1⁄4 acre suburban lot a half a mile from the sea. The primary design charge was to create a big, but informal house where a range of activities can occur and visual connections are myriad.
Strong connections to the outdoors, maximization of natural ventilation and minimization of air conditioning, lots of light and the ability to have areas of intimacy within the open house were part and parcel of the charge.
Our design solution, a triple- spoked house, is comprised of thin wings joined at an outdoor center with as much openness as practical. The three wings contain garage, kitchen/dining and living/ study on the ground floor and parents, kids and guest wings on the second floor.
The triple-spoke organization creates an alternative site plan that is counter to the front yardback yard organization of the typical single-family house lot.
By contrast, the triple-spoke scheme creates three yards instead of two. Re-configuring the conventional building lot further, the driveway punches through the three spokes at their junction and allows access into a garage that faces the rear of the lot instead of facing the street.
The passage of the driveway into the rear yard also provides for a covered entry in the center of the house.
Architects: LEVENBETTS
Location: Amagansett, NY, USA
Area: 8000.0 ft2
Project Year: 2014
Photographs: Michael Moran / OTTO
Project Architect: Andrew Feuersteln
Partner AIA: David Leven
Partner: Stella Betts
Design Team: Deric Mizokami, Sebastian Mardi, Angi Tsang, Edwin May, Bret Quagliara
Structural Engineer: Guy Nordenson and Associates
Lighting Designer: Tilloston Design Associates
Contractor: Reinhardt O’Brien












More Similar Articles Like This
Amazing Four Seasons Resort Bora Bora
5 Ways to Turn Your Yard Into a Fancy Space
Beach House CN – A Superb Contemporary Home in Peru
10 Different Types of Blue Paint Colors
Wonderful Yachting Club Villas at Elounda Beach by Davide Macullo Architects
Secluded Naladhu Island in Maldives
Spectacular Luxury House in Sarasota, Florida by DSDG Inc. Architects
Stunning Banyan Tree Ungasan Bali in Indonesia