This 1,402-sq-m property in Dakar, Senegal is the 2011 project of Stefan Antoni Olmesdahl Truen Architects and interior designers Antoni Associates. The businessman owning the property that’s set on a cliff with view to the Atlantic Ocean wanted a house for his young family.
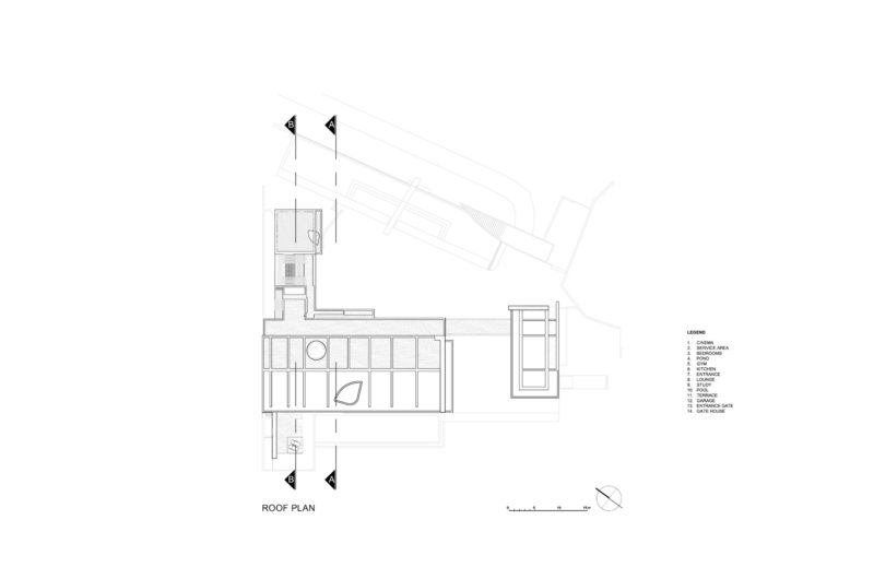
Since the building was created as a bunker in the World War Two, the underground part was transformed into an entertainment zone with cinema and a water courtyard on the outside. The architects had to take into consideration that the cliff side will erode. They made the building look like it is floating to delimitate it from the eroding cliff.
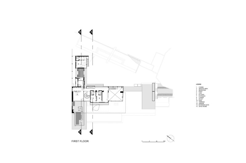
Terraces were inevitable given the intention of creating best views over the ocean. The structure of the indoor spaces is made so that each room can have a good view over the water. The main house includes the study and the hallway as its principal points. Other areas here are the reflective pond, gym, the lounge, the terrace for barbecues, the pool terrace and a gaming room.
As for the interior design, one main element of the house is the staircase built in a spiral shape. It’s made of stainless steal and white granite. The rods of stainless steel included in the handrail create the impression of a steel tube looking down from the upper floor to the underground one.



















More Similar Articles Like This
Marvelous Anantara Dhigu Resort
The Sophisticated Casa Villa Flamingo in Spain
Wonderful Yachting Club Villas at Elounda Beach by Davide Macullo Architects
Pure Perfection: Discover the Top White Paint Colors for a Flawless Décor
Seamlessly Apartment by the Beach by ZZ Architects
Extraordinary Constance Halaveli Maldives Resort
Saguaro Palm Springs by Joie de Vivre
Tips for Choosing the Right Blue Paint Color for Your Dining Room