The Skylight House was designed by Andrew Burges Architects, and it was completed in 2013 in Sydney, Australia. It offers 2,206 square feet of living space and represents the result of the successful renovation of an older and much less impressive abode. It now offers impressive accommodation options for a family of 6, all thanks to a generous selection of high-end amenities complemented by high quality furniture pieces and modern facilities.
The residence features a single level and is flooded by natural light throughout the day thanks to its large windows and 5 skylights. The original home already had 2 skylights but the architects decided to add another 3 in order to strengthen the connection to the outdoor environment while allowing the residents to feast their eyes on amazing views of the sky. The materials used in the renovation process are of the highest quality, including the wood for the bedroom floors and decks as well as the recycled brick that was a part of the previous home.
From the architect:
Located in a predominately Federation and California Bungalow neighbourhood on the north shore, our brief for this residential alterations and additions project was to rework a badly planned existing dwelling, and previous alterations project, to create a functional house for a family of 6 with improved natural light and greater connection to the garden. After initially exploring a two level option at the client’s request, we encouraged a compact single level proposal with improved planning and a spacious cross section as the best solution within the project’s tight budgetary constraints.
The conceptual framework of the house has been developed around improving the quality and character of natural light in both the existing interior and as a defining element in the new addition. 5 skylights – two existing and three new – have been incorporated to shape a distinct cross section that allows natural light and a connection to the sky from within the deep internalized footprint of the existing house, while shaping a generous and spacious cross section in the new addition.
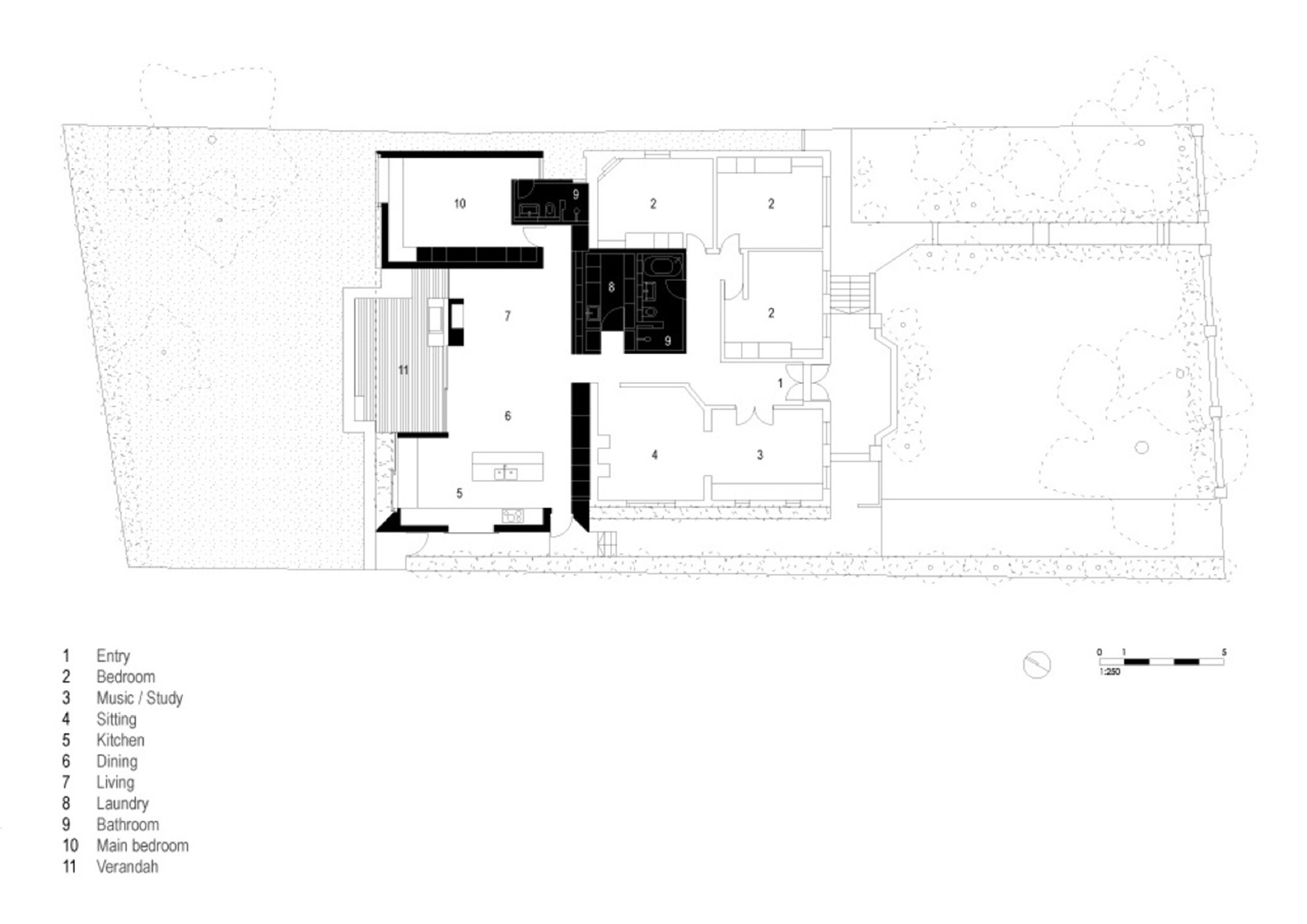
Working in tandem with the more generous cross section of the new addition, the internal planning has been modified to create a more compact floor plan for the whole house. A carefully inserted central core containing a new bathroom and laundry has reframed the existing internal plan to reduce excessive corridors and create a more direct connection between the existing entry and living rooms, and the new addition. The new internal walls of the addition have been designed as thickened storage walls, moderating the need for more space by providing ample room for storage for the large family.
The skylights and shaped section has also determined the material character of the house. The section creates a play between an abstract, white, sculptured ceiling line and bulkhead datum, which washes light on the more robust natural finishes used below the ceiling and bulkhead datum. The major structural walls are recycled face brick re-used from the existing house’s demolished rear walls and external laundry and bathroom. All joinery below the ceiling line datum is American oak, while the floor is concrete with underfloor heating. Internally this creates a clear palette of abstract lightness above, while all materials within touching distance of the occupants are robust, easily maintained natural materials.
Externally, the roof edge and brick edge of the side walls defining the key vertical and horizontal rear lines of the façade are cut to a common dimension of 50mm, giving a lightness to the bounding frame of the rear façade. Within this outline, timber walls and windows are integrated to be a common material finish that creates the perception of a separate building element within this long rear façade. Sliding screens allowing variability to the façade according to sun control and privacy needs. The roof form, while housing a complex interior section, creates a simple and modest outline for the rear addition that sits comfortably with the federation and California Bungalow neighbouring dwellings.
The Skylight House addressed social and environmental sustainability by attempting to create significant improvements in the environmental amenity and performance of an existing 1940’s building, while also making a series of material choices to limit waste. Key initiatives in the development of the project included:
The development of a generous cross section that significantly improves privacy and natural light in the existing house and new additions, reducing the need for use of lighting during daylight hours.
The use of recycled brickwork in the project – combining re-used bricks from the site with recycled bricks from the brick pit to reduce waste and improve the carbon footprint of the project.
The use of hydronic underfloor heating as the principle source of heating in the project, reducing energy usage of the house.
The use of extensive cross ventilation, eaves and an operable screen system as a substitute to artificial cooling, reducing energy usage of the house.
Design Team: Andrew Burges, Louise Lovmand, Anna Field
Area: 205.0 sqm
Year: 2013
Photographs: Peter Bennetts













More Similar Articles Like This
Stunning Sustainable Home in Costa Rica by SPG Architects
The JKC1 House in Bukit Timah, Singapore
Shadowed Depths: Vintage-inspired Paint Colors for Dark Basements
Benjamin Moore Exterior Paint: Vibrant Shades for a Striking Home
Plain Geometric Residence Designed by Lidija Dragisic
Loving Luxury at Mardan Palace Resort, Turkey
Seamlessly Apartment by the Beach by ZZ Architects
Astonishing El Tovar by the Sea