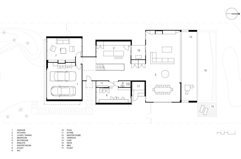
The Torquay House located in Torquay, Victoria, Australia was completed by Wolveridge Architects in 2012. Because of the coastal conditions here, the building had to be robust yet protective and to make the occupants feel safe and to enjoy good times here whether they are residents or weekenders.
It provides excellent views to the north and south and it consists of robustly finished containers. The spaces between these containers are essential for the program and to the resistance in time of the building.
Its robust appearance is compensated by the expression of finely considered detail and proportion.
Credit photography: Derek Swalwell




















More Similar Articles Like This
The Superb Maradiva Villas Resort & Spa in Mauritius
Unique Click Clack Hotel In Bogota, Colombia
Spectacular Rooftop Apartment by Innocad
Stunning Sustainable Home in Costa Rica by SPG Architects
6 Garden and Lawn Tips to Get Ready for Spring
Stunning Banyan Tree Ungasan Bali in Indonesia
Beach House CN – A Superb Contemporary Home in Peru
How Seattle Lawn Care Service Deals With Overgrown Lawns