This beautiful home in Costa Brava, Spain is the result of a major intervention carried out by MANO Arquitectura. The house can be found on a small beach named Aiguablava, which ensures exceptional views of the sea and of a nearby pine forest. As a matter of fact, the owners purchased the home because they particularly enjoyed the views. However, the original abode was not up to par with their expectations, which is why an extensive renovation project was necessary.
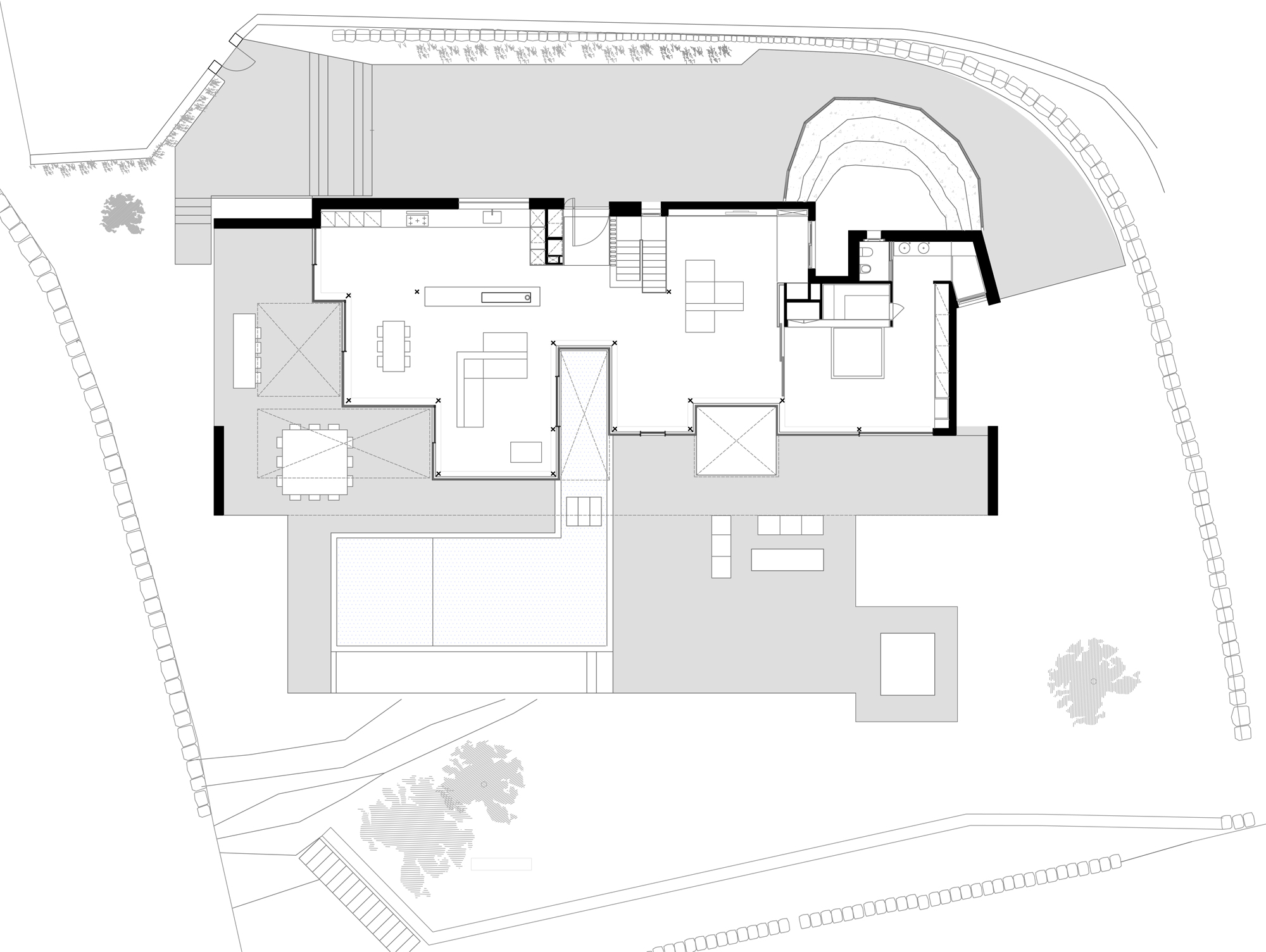
The residence features a single ground level as well as a basement area. Its main social spaces as well as the master bedroom are found on the ground floor, while the basement comprises three extra bedrooms. The living room boasts a direct connection to the outdoors thanks to a series of floor-to-ceiling windows and sliding glass doors.
Outside, we find a large swimming pool and lounging areas that can be used to socialize and relax while enjoying the afternoon sun.
From the architect:
Aiguablava is a small beach on the Catalonian Costa Brava, embraced by low mountains, where houses overlook the sea between the pine tree forests.
In the top of a completely flat plot, our clients purchased a construction. They called me to ask if I could help them to adapt the existing house to their real needs. I was a little disappointed, since I had been looking for a plot to build a new house and had all my enthusiasm put into this project. I asked them why they had bought a house that did not fit at all the description of what they wanted. They said it was the only flat plot they could find and the views were wonderful.
The original house, ground floor and basement, had a facade facing the sea, formed by a perimeter wall construction, with many small windows and a very fragmented distribution.
They said “We want to look at the sea! The best of this house is the view, but when we are inside, we can hardly appreciate it. We also want big spaces; we do not need so many rooms”.
From there, what started as a small project became a major intervention. The plan form of the house was already defined, because the maximum of allowed construction was built, so we decided to respect the perimeter in order to keep the original structure.
On the ground floor, we decided to keep only the spaces of public use and the master bedroom; the other rooms would be located at the basement, where we faced lack of light problems and the spatial quality of the rooms. To remediate it we projected two small courtyards in the front and back of the house that allowed us to open large windows and build three bedrooms.
Once we solved the rooms problem, we had to open the ground floor tearing down the walls to make it into a single, large space, with only a sliding gate to separate the main bedroom by night.
We decided to keep the perimeter of the façade but replace the wall with glass work in a single skin that ran through all the front façade. In this way, we got a panoramic view from everywhere, which in turn is filtered by the innumerable reflections of the crystals, giving a different perception from every angle.
Finally, to solve the problem of direct sunlight exposure through the windows, we projected a concrete pergola of more than 30 meters span, without any intermediate support, that allowed us to create livable and protected interstices where people could meet and eat on summer days.
Architect In Charge: Sebastian Machado, Victoria Esborraz
Area: 735.0 sqm
Year: 2014
Photographs: Luis Carbonell
Contributors: Milagros Machado
Contractor: THK Construcciones S. L.













More Similar Articles Like This
Shadowed Depths: Vintage-inspired Paint Colors for Dark Basements
Lawn Care Tips, The Basics For Each Season
Exploring the New World of Luxury Hoteling
Beach House CN – A Superb Contemporary Home in Peru
Different Types Of Foundations For Summer Houses and Garden Buildings
Superb Luxury Penthouse in Portomaso, Malta
Green Gables Home In Fairfield, Connecticut, United States
70 Shades of Green: Benjamin Moore’s Vibrant Paint Colors