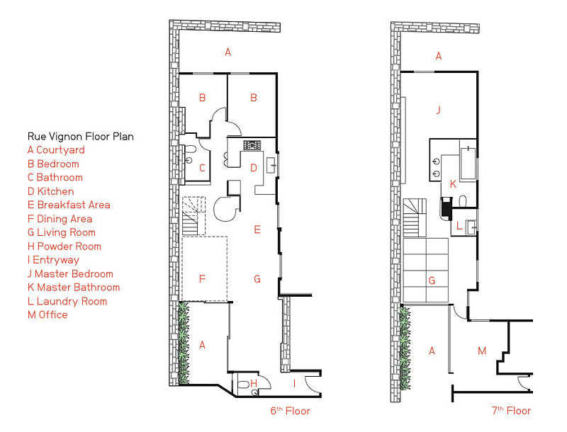
Apartment Madeleine is a renovated duplex apartment from the late 18th century located in the eighth-arrondissement of Paris, France that belongs to the principal of French studio Ateliers Michael Herrman, Michael Herrman. In fact, he is the one who renovated it for him and his family.
It’s a 1,500 square foot, three bedrooms dwelling that abounds in natural light due to the glass floor installed above the dining area.
It is located in a 200 year-old building and after renovation preserved the old character that was mixed with contemporary elements to turn it into a genuine loft-style space in the heart of Paris.
The original element of the apartment is the courtyard terrace set in a corner that appears to be an interior room.
The indoor and outdoor spaces are contrasted through their design while the edge between them is blurred by the vertical garden.
Glass was excessively used through the design, including the glass cabinets in the kitchen, glass tiles, counters and fixtures.
Photos by Filippo Bamberghi




















More Similar Articles Like This
Pure Perfection: Discover the Top White Paint Colors for a Flawless Décor
Outstanding Bodrum Houses in Yalikavak, Turkey
Benjamin Moore Exterior Paint: Vibrant Shades for a Striking Home
Marvelous Anantara Dhigu Resort
Lawn Care Tips, The Basics For Each Season
Saguaro Palm Springs by Joie de Vivre
Behr’s Brilliant Blues: 70 Shades of Stunning Paint Colors
Dreamy Oceanfront Chateau In West Vancouver, Canada