House H is located in Taichung City, Taiwan, and it was completed by Studiobase Architects in 2015. It features 3,950 square feet of living space and has a slightly irregular rectangular design that was achieved by cutting off the northeast corner of the building. The clients wanted to live in a house that offered spacious interiors flooded with natural light and cooled passively via natural ventilation. They also wanted to preserve the image of the original bungalow, which has been demolished, and they requested that the private and public spaces would be defined accordingly.
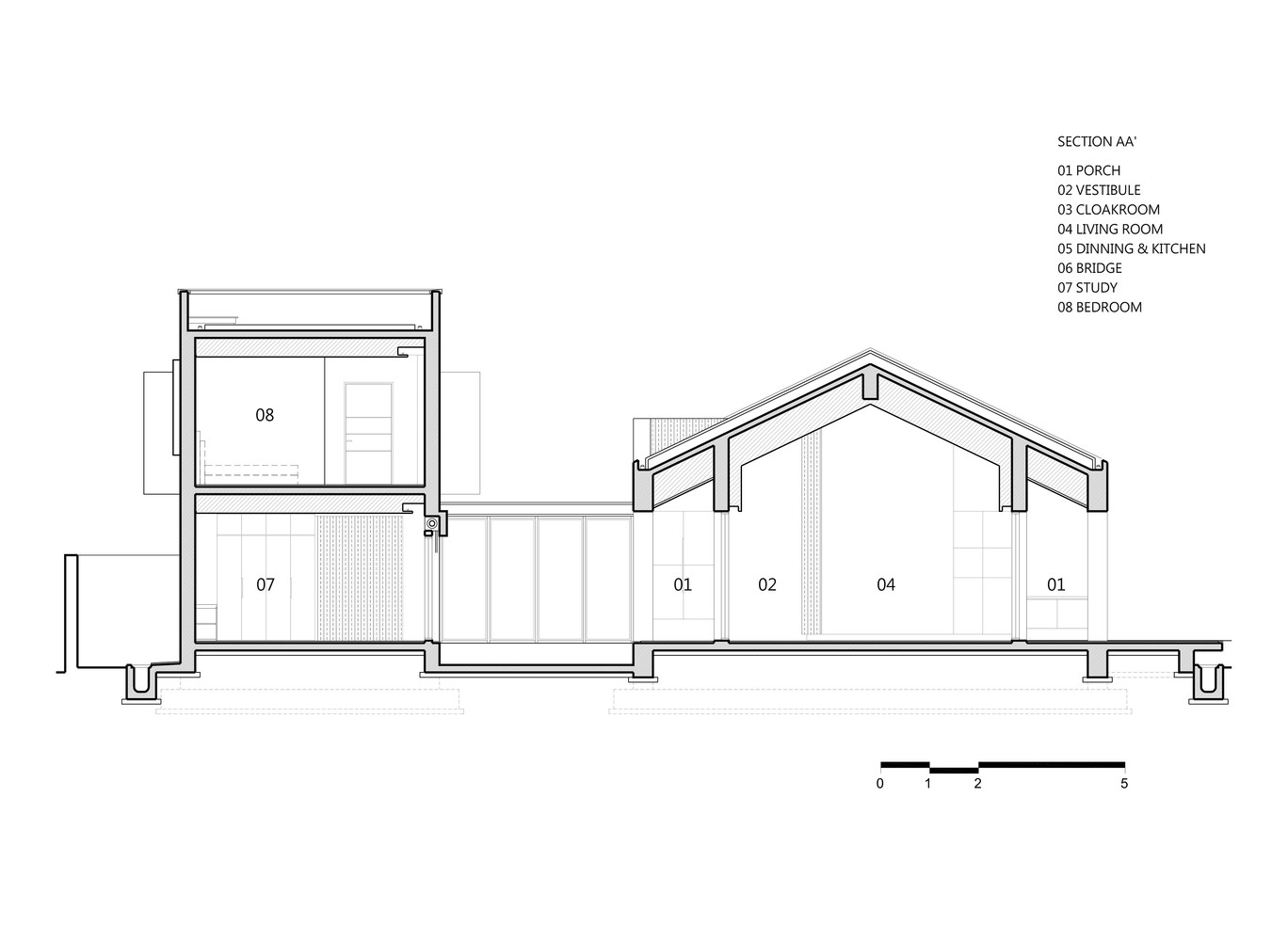
The architects managed to fulfill all of their expectations by separating the layout into three parallel zones. The zones feature different widths of 22.9 feet, 13 feet and 16.4 feet respectively from east to west. The 16.4-foot area incorporates two floors occupied by bedrooms and a study, while the 22.9 feet volume comprises the public areas such as kitchen, dining room and living room. Between these zones is a13-foot wide area that boasts a reflecting pool and a plumeria tree, which adds a touch of naturalness and warmth to an otherwise, modern and minimalistic residence.
From the architect:
House H is located on a corner of an urban residential area. The rectangular shape of the building lot is slightly slanted and irregular, due to the cut-off of the northeast corner. The requests from our clients are simple:
1. Public and private zones must be clearly defined.
2. The image of the original bungalow (now demolished) needs to be preserved.
3. All interior spaces need excellent daylight and natural ventilation.Our scheme is to divide the plan into 3 parallel zones, the width are 7m, 4m, 5m respectively, from east to west. The 7m-wide zone holds up the public function such as living, dining and kitchen. And the form of this public building is a one storey pitch-roofed volume with a front porch, which resembles the original bungalow. The 5m-wide zone contains two floors of bedrooms and study. In between of these two volumes is a 4m-wide reflecting pool with a plumeria tree, which mediates the micro-climates and also disperses fragrance in the air.
The house is constructed of reinforced concrete frame system, we separate the frame and wall to create a semi-outdoor porch, which benefit the living room with good shading. The pitch-roof canopy turns the chunky volume into a pavilion in the woods. The walls are all painted white, so the daylight and shadow can give the east-and-west facing sculptural walls a dynamic expression. The roof is covered by standing-seam titanium zinc panels, which blends into the neighboring roofscapes.
Architects: Studiobase Architects
Location: Taichung City, Taiwan
Area: 367.0 sqm
Project Year: 2015
Photographs: Yuan, Wei-Ming
Builder: Summer Construction Company
Structural engineer: Tien-Shiang Engineering Consulting Company
HVAC: Di-Ding Engineering Consulting Company
Landscape: Song-Quan Landscape & Design Company














More Similar Articles Like This
6 Garden and Lawn Tips to Get Ready for Spring
Beautiful Apartment in Stockholm for $1 Million
Unique Click Clack Hotel In Bogota, Colombia
Saguaro Palm Springs by Joie de Vivre
5 Ways to Turn Your Yard Into a Fancy Space
A Superb Italianate Mansion in California, USA
Extraordinary Constance Halaveli Maldives Resort
These Top Tips Will Help You to Turn Your Garden into the Ultimate Glamping Site!