The Red Rock House was designed by a team of skilled architects from Anmahian Winton Architects, and it was constructed in 2013 on a 16-acre property in the middle of the woods in Red Rock, NY, USA. The project was envisioned as a modern masterpiece in the middle of nature, a home that offers impressive living conditions even though it is removed from urban civilization.
The house’s interior features a minimalistic design, and it is bathed in sunlight throughout the day thanks to a selection of generously sized windows. As far as decorations are concerned, they come in the form of beautiful artworks and contribute to a feeling of elegance and fine taste. With 6,400 square feet of living space, this is a relatively spacious abode that stands ready to support a comfortable lifestyle. It boasts high quality furniture pieces as well as modern lighting arrangements and high-end amenities.
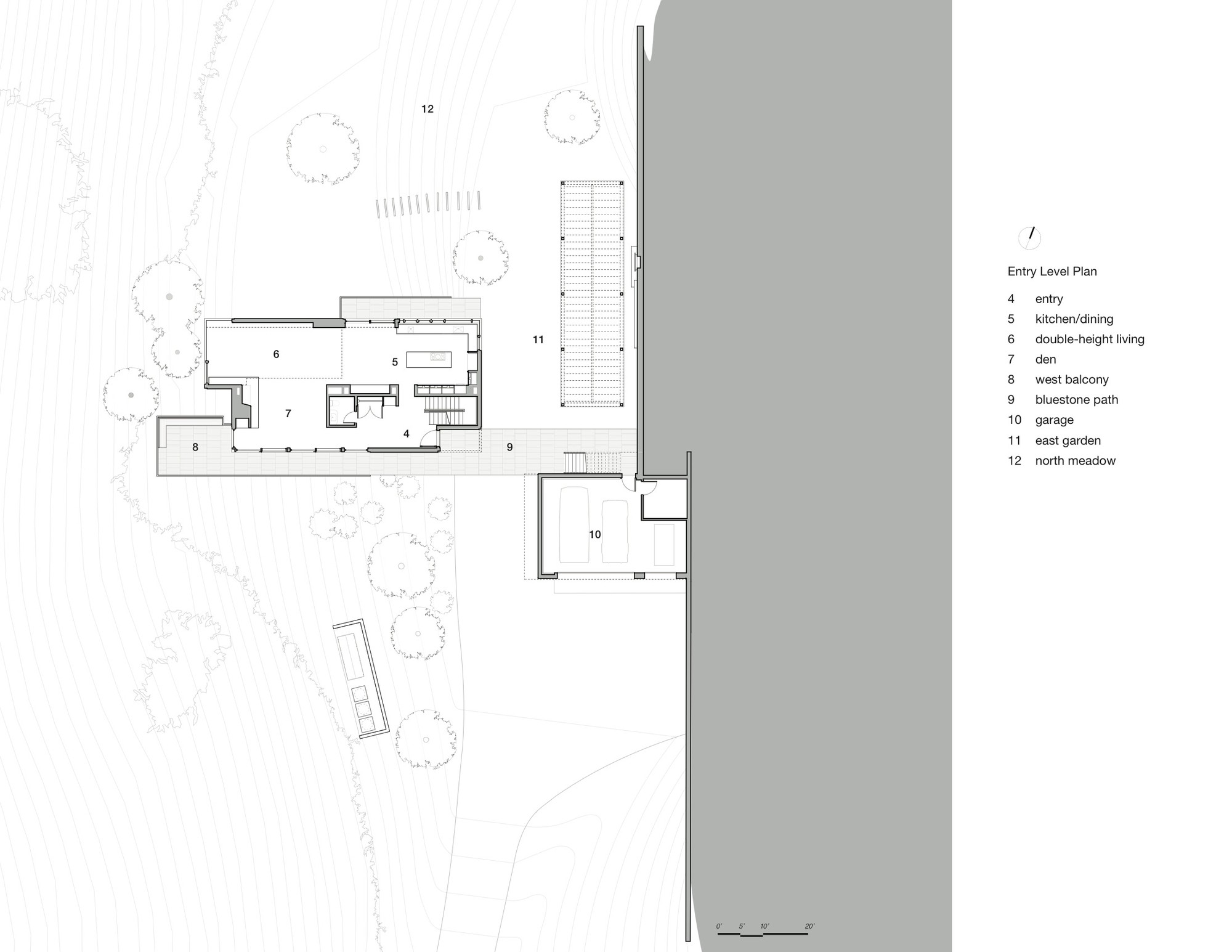
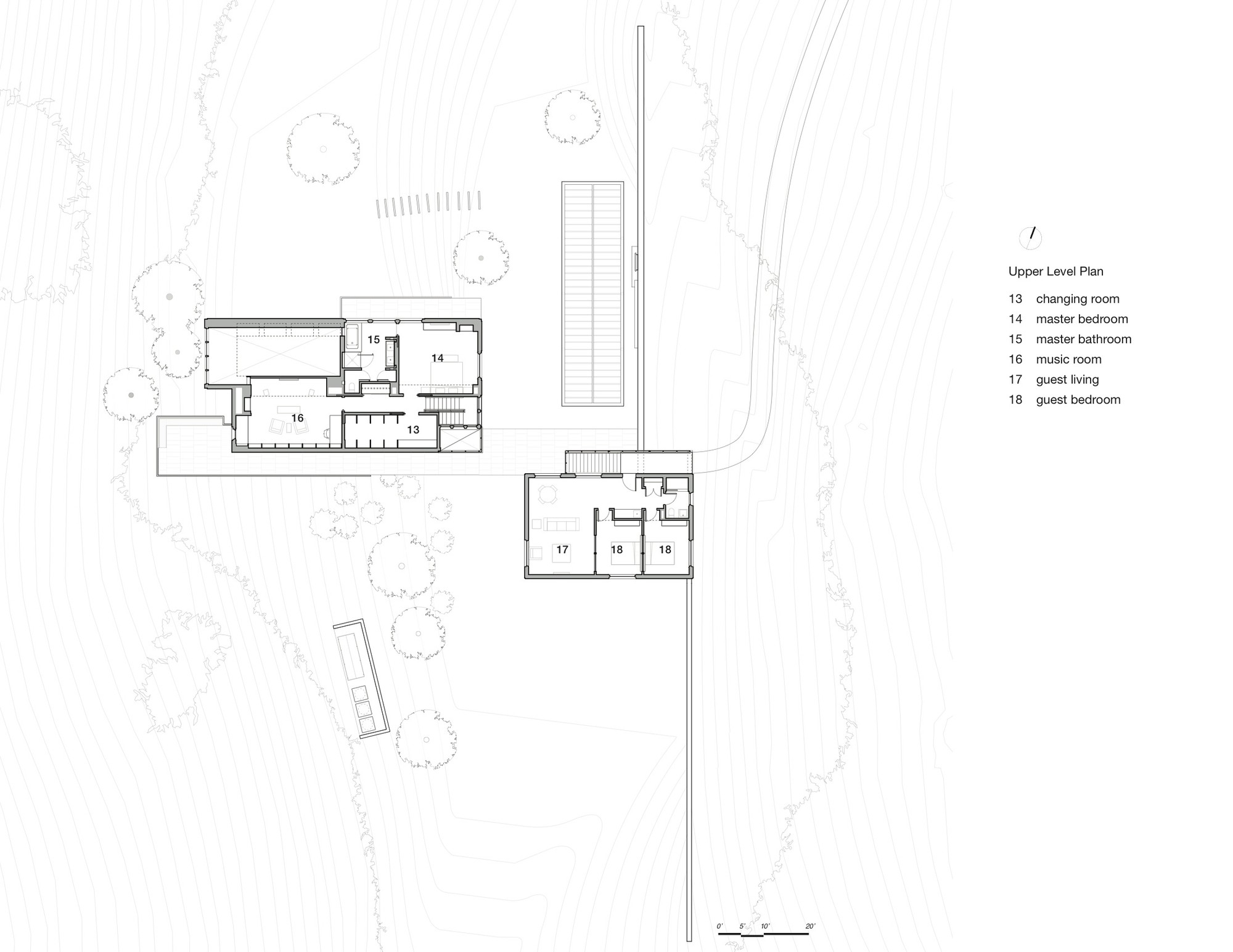
The project also includes a guesthouse that is linked to the main residence via a linear bluestone path that leads on towards a balcony found amidst the treetops.
From the architect:
This home is located in a small Berkshires township on a densely wooded, 16-acre property. The site initially afforded no views and little sun penetration, its topography defined by a steep slope, a vertical rock ledge along its east edge, and a creek prone to seasonal flooding to the west. These dramatic elements informed the siting of the buildings and the ways that landscape, views, and daylight could be integrated into the design.
The project embraces a “machine in the garden” design approach, where contemporary vocabulary and minimal form underscore the relationship between built work and natural landscape. AW collaborated closely with Cambridge-based landscape architects Reed-Hilderbrand on both the development of sustainable foresting as well as the design of garden terraces and architectural landscape walls. The initial design strategy focused on manipulating the site to preserve as much of its natural topography as possible. A 200-foot long board-formed concrete retaining wall runs north—south along the site’s east edge to expose new plateaus for buildings, garden, and meadow. Clinging to this wall, the guesthouse anchors the building assembly in the steep hillside, while the main house and deck project out from the landform into the treetops. A linear bluestone path connects guesthouse and main house, and leads to the west balcony in the tree-tops, looking out over the creek below.
A minimal materials palette evokes both rusticity and precision, reflecting the juxtaposed orders of landscape and architecture. Buildings are clad in a high performance rainscreen of knotty western red cedar boards, milled with multiple profiles to generate a pattern that changes with the sun’s movement. The boards are organized within vertical bays delineated by aluminum T-sections, producing a textured rhythm that accommodates openings, fenestration, and screens. Lattice volumes created with aluminum L-sections indicate primary entrance to both buildings, while screening interior spaces from exposure to southern sun. Building interiors are entirely white, emphasizing the play of light, the client’s collection of art, and views of the landscape.
- Location: Red Rock, NY 12060, USA
- Design Team: Nick Winton, AIA, Alex Anmahian, AIA, Makoto Abe, Project Architect; Sydney Thiel, LEED AP, Mazen Sakr
- Landscape: Reed Hilderbrand LLC Landscape Architecture
- Area: 6400.0 ft2
- Project Year: 2013
- Photographs: Jane Messinger
- Structural Engineer: RSE Associates, Inc
- Civil Engineer: Morris Associates P.L.L.C
- General Contractor: Lou Boxer Builder, Inc















More Similar Articles Like This
Shadowed Depths: Vintage-inspired Paint Colors for Dark Basements
Behr’s Brilliant Blues: 70 Shades of Stunning Paint Colors
Stunning Banyan Tree Ungasan Bali in Indonesia
Plain Geometric Residence Designed by Lidija Dragisic
Pure Perfection: Discover the Top White Paint Colors for a Flawless Décor
Astonishing El Tovar by the Sea
Spectacular Rooftop Apartment by Innocad
70 Shades of Green: Benjamin Moore’s Vibrant Paint Colors