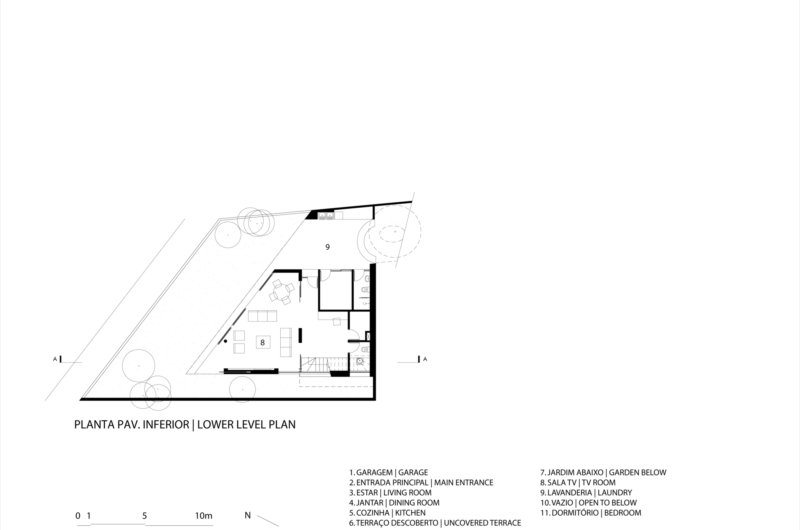
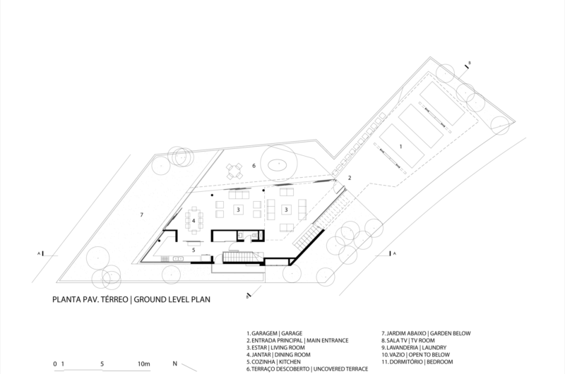
The Offset House created by Shieh Arquitectos Associados is located in Sao Paulo, Brazil and was designed in accordance with the site’s complicated geometry.
Its name, Offset House comes actually from the reflection of the sides of the lot. It’s possible not to impress with something particular, but it was built by the common sense rule, meaning that it features plenty of space for a family to live in, the necessary utilities and what we noticed to be a particular element, was the amazing tree that acts like an element of design and also as a protector of the house.
Its shape is not negligible also because is kind of unusual and for those who love to be special, this house is the perfect choice for them.
Photos by Fernando Stankuns























More Similar Articles Like This
The Superb Maradiva Villas Resort & Spa in Mauritius
Best paint colors for the living room
Lawn Care Tips, The Basics For Each Season
Wonderful Yachting Club Villas at Elounda Beach by Davide Macullo Architects
Heavenly Lily Beach Resort & Spa In Huvahendhoo, Maldives
70 Shades of Green: Benjamin Moore’s Vibrant Paint Colors
Exquisite Crossacres Mansion In Surrey, England
Exceptional Coronado Bay Front Estate in California