Spacious, modern and comfortable, the LA House was designed by Elías Rizo Arquitectos, and it is located in Mexico. It was completed in 2014 and measures 10,042 square feet. It flaunts a central courtyard that ensures natural ventilation throughout its rooms, a courtyard that is surrounded by a series of corridors with operable windows.
The second level includes private open spaces such as a glazed atrium that provides much needed ventilation for the master bedroom. As far as the master bathroom is concerned, it’s worth noting that it distinguishes itself from the rest of the rooms through a remarkable appearance, as it is clad in white marble. The rest of the materials used in the construction endeavor include glass, wood, gray steel, stone compose and concrete. The aforementioned materials are complemented by leather and stainless steel elements for a plus of elegance and durability.
Apart from providing exceptional interior living arrangements, the LA House also impresses with outstanding outdoor socialization and entertainment opportunities, all thanks to the wooden benches, large table and plush sofas placed in the central courtyard.
From the architect:
LA House was born out of an especially fruitful relationship with the client. Thorough communication was established from the beginning we were granted complete trust to translate their needs into space.
Breaking with the norm established by all the houses in the vicinity, LA House recedes a considerable distance from the setback line, to yield a large open space below the tree canopies, a stark welcome gesture.
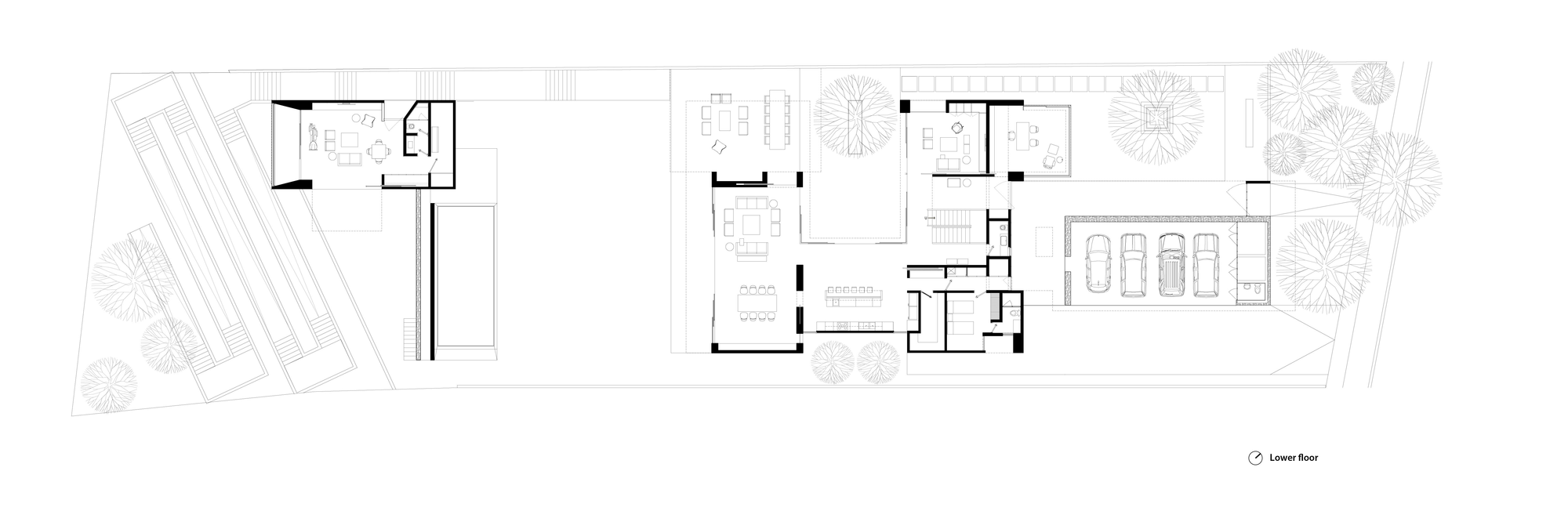
The main entry into the complex proceeds to an open passageway that runs along a rough-hewn stone wall and postpones the access into the house an additional number of meters. A glazed box containing a studio protrudes from the building. It hovers above a large pond that can be crossed via a series of stone pavers that rise above the water and lead directly into the public areas of the house. The garage, concealed on the other side of the stone wall, compels cars to park sideways so as to render them invisible from any space in the house.
The entry sequence into the building presents a series of layers, starting with the garden space beyond the setback lines, following through the open corridor past the pond, and crossing through the central courtyard all the way to the living spaces at the back of the main building.
A central courtyard scheme was implemented to introduce natural ventilation into every space of the house without compromising privacy. The corridors around the courtyard on the ground floor are defined by a series of operable windows that allow the kitchen and living spaces to bleed out into the exterior, when the weather allows it.
Expanding on the theme of permeability that dominates the ground floor, similar solutions were implemented throughout the living quarters on the second level, to allow for the private, open spaces. Such is the case with the small, glazed atrium that ventilates the master bathroom and the deeply recessed balconies that yield generous exterior areas to all bedrooms.
Crossing the lawn, beyond the living spaces on the ground floor, a pool and a concrete volume containing an entertainment room overlook a small ravine outside of the property. Below this volume a staggered pathway descends gently to negotiate the changes in topography on a pronounced cliff, leading down to a lower landscape area.
Dark gray steel, glass, wood, concrete and stone compose the greater part of the material palette throughout the house, wich is complemented by accents in leather and stainless steel. The master bathroom receives a special treatment as it is covered almost in its entirety with white marble.
Year: 2014
Photos by Marcos García
Collaborators: Jenny Mora, Paola Hernández, Alma Osnaya, Jenny Canarena, Gabriela Chávez, Roberto Contreras, Rigo González, Carlos Miiramontes, Daniela Valdez, Maripily Roel, Diana Reséndiz, Rodrigo Ortega
Interior Design: Kárima Dipp















More Similar Articles Like This
Behr’s Brilliant Blues: 70 Shades of Stunning Paint Colors
Plain Geometric Residence Designed by Lidija Dragisic
Benjamin Moore Exterior Paint: Vibrant Shades for a Striking Home
A Superb Italianate Mansion in California, USA
Wonderful Yachting Club Villas at Elounda Beach by Davide Macullo Architects
Different Types Of Foundations For Summer Houses and Garden Buildings
Stunning Banyan Tree Ungasan Bali in Indonesia
70 Shades of Green: Benjamin Moore’s Vibrant Paint Colors