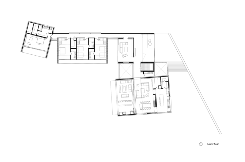
The MM House was designed by Elías Rizo Arquitectos, and it was built in 2014 in Tapalpa, JAL, Mexico. With 16, 759 square feet of living space, the residence offers exceptional living conditions to its owners, which happen to be two brothers. The brothers initially wanted to live in their own separate houses, but since both of them wanted about the same things when it comes to accommodations, they eventually decided that the abodes should share a common design.
The homes boast a tight connection to the outdoors and feature large windows that welcome plenty of natural light throughout the main living areas. House A was built on higher ground than House B, and all of its living areas are centered around an open yard. House B flaunts the same layout but distinguishes itself through a rectilinear floor plan, while its bedrooms are found on a single level.
The interior atmosphere within both houses is one of rustic elegance and comfort, all thanks to a generous selection of high-end amenities complemented by high quality furnishings and superb decors.
Photos by Marcos García












More Similar Articles Like This
10 Different Types of Blue Paint Colors
Beautiful Apartment in Stockholm for $1 Million
Vibrant Concrete Floor Paint Colors to Elevate Your Space
Lawn Care Tips, The Basics For Each Season
Santa Barbara Style Home in Paradise Valley, Phoenix
Gayton Road Residence by Paxton Locher Studio
Exploring the New World of Luxury Hoteling
Wonderful Yachting Club Villas at Elounda Beach by Davide Macullo Architects