MM House was sketched out by Estudio Puyol – Meinardy, and it is located in Colastine, Santa Fe, Argentina. It flaunts 2,411 square feet of living space and was built using one of the world’s most reliable materials: brick. Complementing the brick is a set of metal gable roofs that form a seemingly weightless “metal blanket.”
The social areas of the residence include a kitchen, a living/dining area as well as a multipurpose barbecue space. The barbecue area boasts perfect views of a nearby park and of the swimming pool. In order to fade the limits between the indoors and outdoors, the architects implemented sliding glass doors and other transparent features.
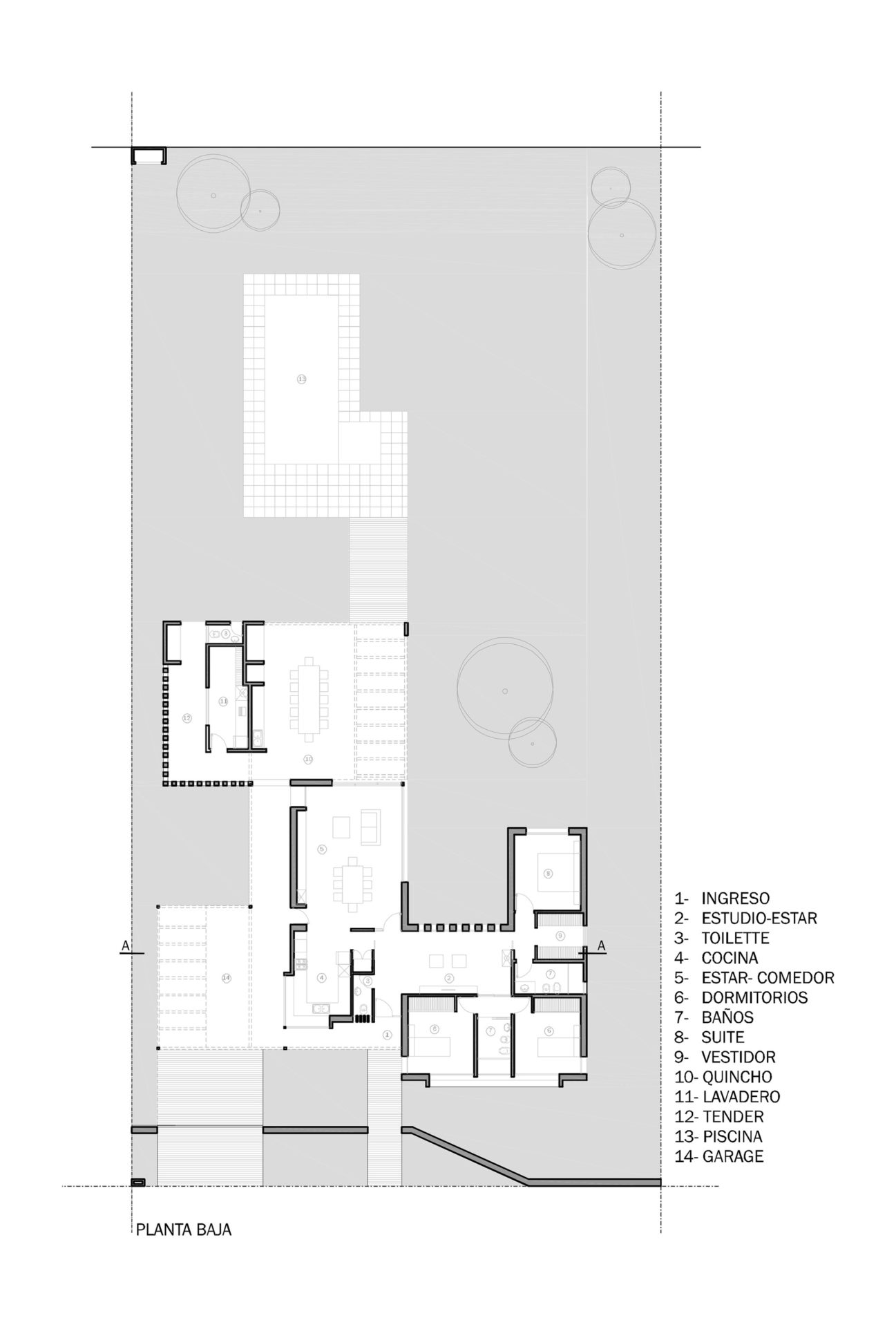
The volume that comprises the private spaces is juxtaposed on the social volume. This volume is less transparent for privacy purposes but still benefits from ample natural lighting and natural ventilation.
From the architect:
This project is located in a suburban lot 20 x 50 meters in the neighborhood of “Colastiné”, tectonically defined by two aspects, firstly the use of brick as a reference material, and secondly, the metal gable roofs.
The weightless “metal blanket”, independent of the walls, defines the social space of the architectural program in a succession of entry, kitchen, living-dining room and multipurpose barbecue area, that end on the main views of the pool and park. Glass envelopes interconnect between the indoor and outdoor spaces, allowing for this dialectic that blurs the boundaries between “inside” and “outside”.
Juxtaposed on this social program, we lay out the volume containing the private area, where we worked with a less permeable enclosure, in order to generate more privacy without losing the necessary lighting and ventilation, contemplating the bioclimatic situation of such spaces.
· Architects: Estudio Puyol – Meinardy
· Location: Argentina
· Project Architects: Gervasio Meinardy, Ma. Dolores Puyol, Virginia Fabre, Leticia Santarelli, Milagros Reinante
· Collaborators: Melisa Roth
· Project Area: 224.0 m2
· Project Year: 2014
· Photographs: Federico Cairoli












More Similar Articles Like This
Wonderful Yachting Club Villas at Elounda Beach by Davide Macullo Architects
Santa Barbara Style Home in Paradise Valley, Phoenix
Dreamy Oceanfront Chateau In West Vancouver, Canada
Plain Geometric Residence Designed by Lidija Dragisic
These Top Tips Will Help You to Turn Your Garden into the Ultimate Glamping Site!
Best paint colors for the living room
Lawn Care Tips, The Basics For Each Season
Spectacular Rooftop Apartment by Innocad