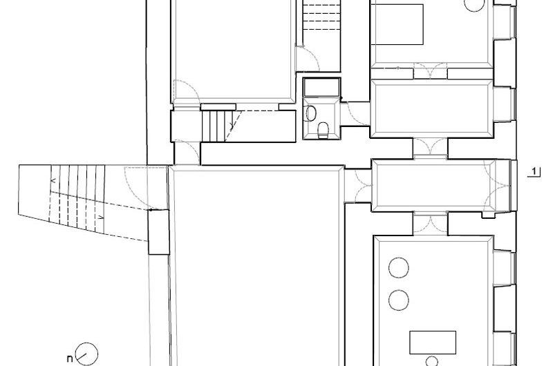
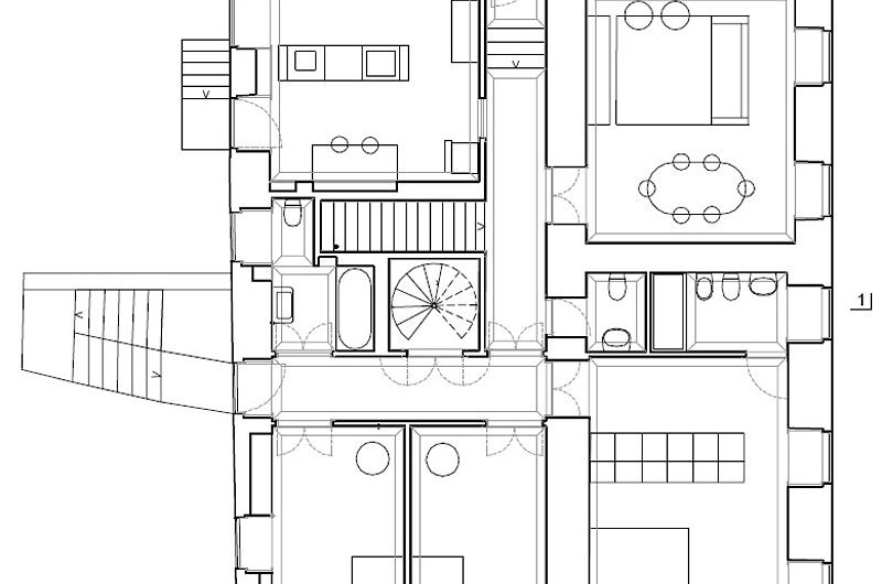
House in Avintes is a recently renovated residence in Vila Nova de Gaia, Portugal. It was completed in 2011 by Gisela Silva Monteiro Arquictectos, who gave the original early 20th century residence a very fresh contemporary look.
Photos by: Marcos Oliveira
















More Similar Articles Like This
Lovelli Residence: Mediterranean-Style Dwelling in Bali
Saguaro Palm Springs by Joie de Vivre
Gorgeous And Spacious Home In Sunset Strip
Beach House CN – A Superb Contemporary Home in Peru
Stunning Sustainable Home in Costa Rica by SPG Architects
The Sophisticated Casa Villa Flamingo in Spain
Astonishing El Tovar by the Sea
Beautiful Apartment in Stockholm for $1 Million