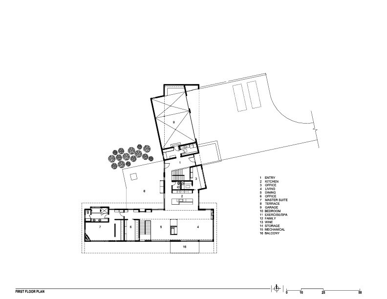
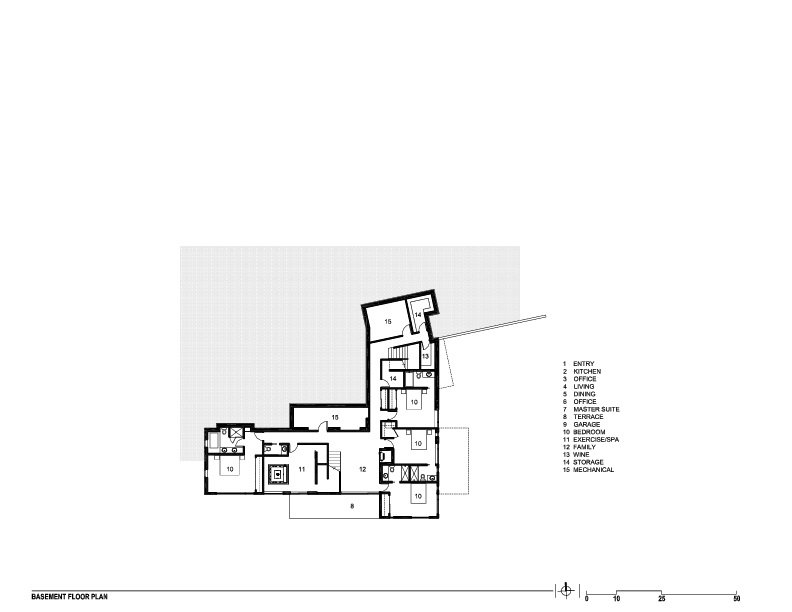
Gros Ventre residence located in Jackson, Wyoming was designed by Stephen Dynia Architects. It’s a low profile building that creates a contrast of spatial experiences, including two intersecting “bars”.
The bars’ south and east sides provide downhill views to the valley floor, while on the northern uphill side, the construction’s two wings create a private courtyard surrounded by aspen trees.
Photos by David Agnello
















More Similar Articles Like This
Unique Click Clack Hotel In Bogota, Colombia
The JKC1 House in Bukit Timah, Singapore
Tips for Choosing the Right Blue Paint Color for Your Dining Room
Seamlessly Apartment by the Beach by ZZ Architects
Wonderful Yachting Club Villas at Elounda Beach by Davide Macullo Architects
Amazing Four Seasons Resort Bora Bora
Spectacular Luxury House in Sarasota, Florida by DSDG Inc. Architects
Different Types Of Foundations For Summer Houses and Garden Buildings