The Guaeca House was completed in 2012 by AMZ Arquitetos, and it can be found in São Sebastião, São Paulo, Brazil. The residence was built under the supervision of Adriana Zampieri, Pablo Alvarenga and Manoel Maia, and it features 2,690 square feet of living space. Located in close proximity to the sea and the beach, this is a perfect holiday home that stands ready to offer fantastic moments of relaxation and fun for its owners.
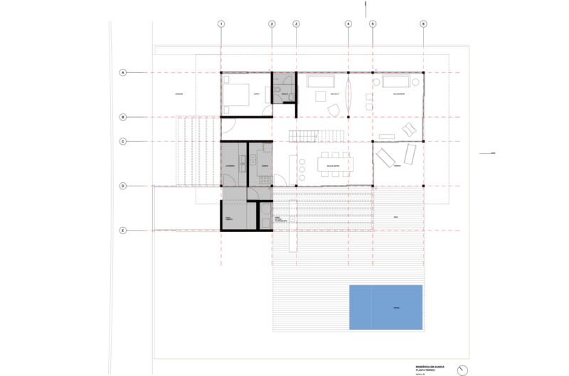
The public areas such as the living room were placed on the ground floor in order to ensure that they would be easily accessible and closely related to the outdoor deck and swimming pool. The service area as well as a barbecue area can be found within a closed block that keeps them out of direct sight. Upstairs, there is a family room as well as 4 suites that flaunt great views of the surrounding environment.
The Guaeca residence was created using a prefabricated wood structure with a façade adorned with masonry panels, glass elements and wood shutters. Sustainability was also a part of the design, and so the home received solar panels on its roof that ensure enough power for the water boilers, water tanks and other facilities.
Photos by Maíra Acayaba











More Similar Articles Like This
Loving Luxury at Mardan Palace Resort, Turkey
Santa Barbara Style Home in Paradise Valley, Phoenix
Plain Geometric Residence Designed by Lidija Dragisic
Beautiful Apartment in Stockholm for $1 Million
Exceptional Coronado Bay Front Estate in California
5 Ways to Turn Your Yard Into a Fancy Space
Beach House CN – A Superb Contemporary Home in Peru
Secluded Naladhu Island in Maldives