Waverley Residence is a contemporary family home located in Waverley, a suburb of Sydney, Australia, which was designed by Anderson Architecture.
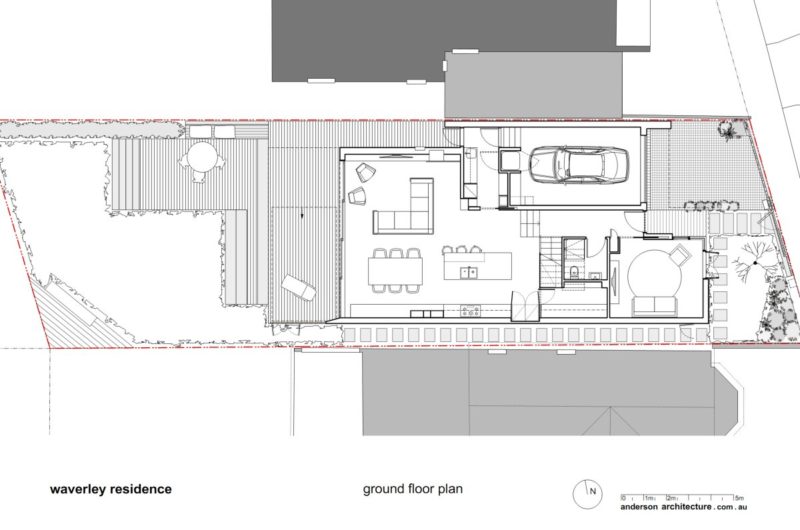
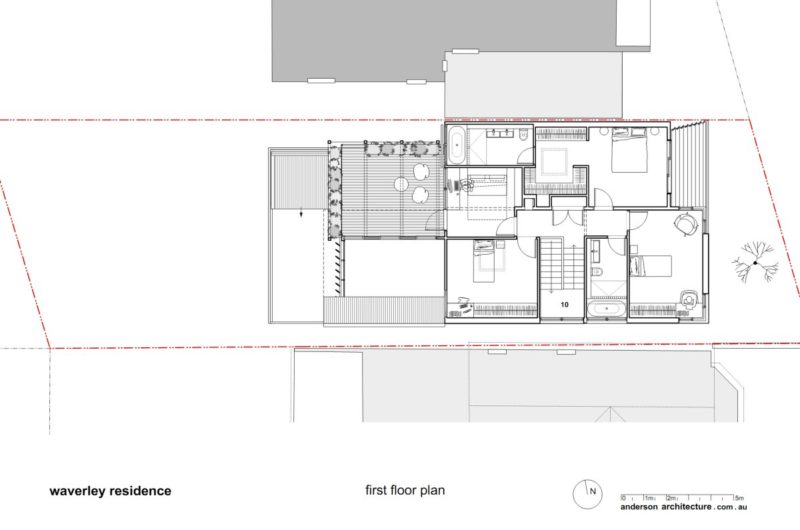
The project itself is a warm and modern 4 bedroom house, featuring a strong connection with the outdoor space that excludes almost entirely the artificial heating, cooling and lighting. There’s a perfect balance between the technical and mineral elements required by the contemporary standards with the natural materials and finishes.
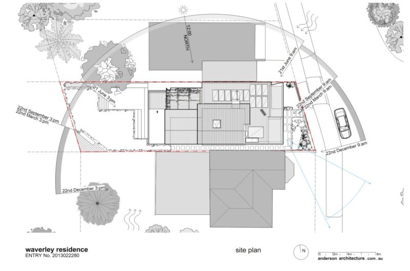
According to the design principles, the material consumption was reduced through the use of some elements such as external shading, operable roof, thermal mass, exposed concrete floor, natural materials and shade planting.
The efficient use of natural materials, products and technologies has turned this house into an ambitious project, which is very useful for its owners.
Photos by Nick Bowers















More Similar Articles Like This
A Superb Italianate Mansion in California, USA
Stunning Banyan Tree Ungasan Bali in Indonesia
6 Garden and Lawn Tips to Get Ready for Spring
Spectacular Luxury House in Sarasota, Florida by DSDG Inc. Architects
The JKC1 House in Bukit Timah, Singapore
Exquisite Crossacres Mansion In Surrey, England
Spectacular Rooftop Apartment by Innocad
These Top Tips Will Help You to Turn Your Garden into the Ultimate Glamping Site!