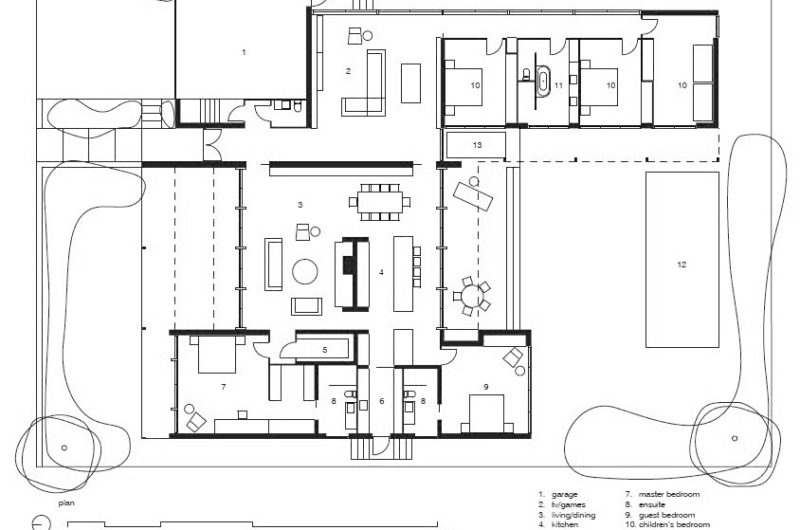
Another single-level residence that we love is the Bellarine Peninsula House by Inarc Architects. The Melbourne-based company completed the project in 2010 in Barwon Heads, Australia.
The house flaunts a central, double height living area, with access to courtyards on each side. This, of course, results in lovely landscapes and excellent indoor-outdoor communication. Parents and children sleeping quarters are separated in different wings for extra privacy.
Photos by: Peter Clarke
Other sources: Atkar


















More Similar Articles Like This
Amazing Four Seasons Resort Bora Bora
Extraordinary Constance Halaveli Maldives Resort
The Superb Villa Verai on Phuket Island, Thailand
Secluded Naladhu Island in Maldives
How Seattle Lawn Care Service Deals With Overgrown Lawns
Green Gables Home In Fairfield, Connecticut, United States
Gorgeous And Spacious Home In Sunset Strip
Shadowed Depths: Vintage-inspired Paint Colors for Dark Basements